A meeting is scheduled for today at 4:00 pm to discuss the proposed townhome development at 1400 Coleman Avenue in Santa Clara. The project developer, City Ventures, plans to build ground-level townhomes on a formerly industrial property, totaling 143 for sale units. The townhomes are being marketed being highly eco-friendly, including solar-powered and all-electric facilities.
The units on site will range from studio ADUs to three-bedroom main units, with a square footage ranging from 452 to 1750 total area. The exact breakdown includes 88 three-bedrooms, 13 two-bedrooms, 18 one-bedrooms, and 24 studio residences.

1400 Coleman Avenue facade elevation, illustration by Hunt Hale Jones Architects

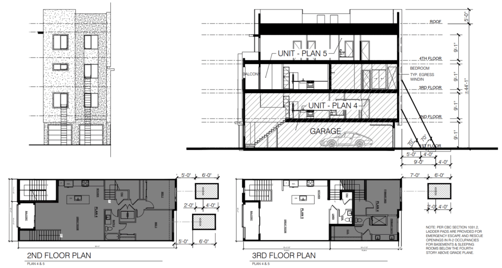
1400 Coleman Sample Floorplan, Elevation and Section, image by Hunt Hale Jones
Hunt Hale and Jones Architects are listed as the project designers. Current renderings reveal four-story modern townhouse designs. The buildings will all follow a similar structural design, including an articulated façade with alternating front offsets to break up the building mass. However, different buildings may follow separate color schemes, with options ranging from off-white to dark brown, accented by wood or other elements.

1400 Coleman Sample Elevations, image by Hunt Hale Jones
The current site is a 3.8 industrial parcel, which is to be rezoned in order to make way for the residential project. The rezoning is at least partially incentivized by the developer’s promise to provide 30% of the development’s units at below market rate.
The building’s location is immediately adjacent to the San Jose Norman Mineta Airport, within a short walk of the Santa Clara Caltrain station. Additionally, the site will include 246 parking spaces to support the tenants’ transportation needs.

1400 Coleman Site Location, image via City Ventures

1400 Coleman Avenue, image via Google Satellite
Subscribe to YIMBY’s daily e-mail
![]()
Follow YIMBYgram for real-time photo updates
Like YIMBY on Facebook
Follow YIMBY’s Twitter for the latest in YIMBYnews






Be the first to comment on "Meeting Scheduled for Townhomes Project at 1400 Coleman Avenue in Santa Clara"