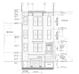
Permits Filed For 379 4th Avenue, Inner Richmond, San Francisco
Permits have been filed for a small residential expansion at 379 4th Avenue in San Francisco’s Inner Richmond neighborhood. The project will replace a three-story duplex with three apartments in a four-story infill. Daniel Wong of Presidio Group is listed as the project applicant.

