Pre-Application For Housing at 162 Clara Street in SoMa, San Francisco
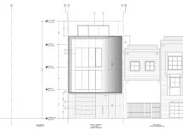
Pre-application plans have been published for a mixed-use infill at 162 Clara Street in SoMa, San Francisco. The project would create a four-story structure with one apartment and one light industrial space. San Francisco-based JS Sullivan is listed as the project applicant.

