The City of Berkeley’s Zoning Adjustments Board will meet today to discuss a proposed zoning change for a project at 1740 University Avenue in Berkeley. The project would convert an existing two-story commercial space into 12 residential units. Three small retail spaces will remain at the street front of the property. The change from previously approved commercial usage to mixed residential is what will be discussed for zoning purposed.

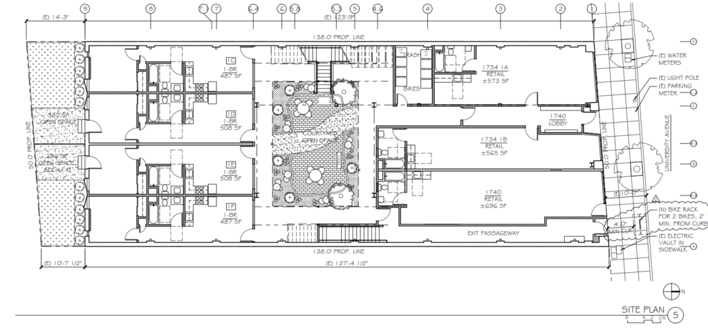
1740 University Avenue Site Plan, image by The Bay Architects

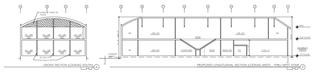
1740 University Avenue Building Section, image by The Bay Architects
All twelve units are proposed as single bedroom apartments. The project plans include a full renovation of the building’s interior to accommodate adequate unit divisions and transitory spaces. The building exterior will also be modified to include additional window openings.
The Bay Architects is responsible for the project’s design. The building’s exterior is to be restored, but largely unchanged from the current building design. The new units will have an entryway and access through a renovated open courtyard space, with some units also provided private outdoor spaces as part of the unit.
The site is located in a highly walkable area, with nearby access to an array of businesses in Downtown Berkeley and along University Avenue. Nearby BART and AC transit stops provide public transit options, and the project will also construct seven new bicycle parking spaces on site.
Details for the upcoming meeting can be found here.

1740 University Avenue Site Location, image via The Bay Architects
Subscribe to YIMBY’s daily e-mail
![]()
Follow YIMBYgram for real-time photo updates
Like YIMBY on Facebook
Follow YIMBY’s Twitter for the latest in YIMBYnews






What a sad looking building. Should be 4-20 stories of residential. Demolish and start over.
Look beyond the grafitti. It’s actually a very handsome structure, but I don’t expect much sympathy from the “Build It!” crowd who want to make the entire Bay Area into Mission Bay.
Mission Bay will be fine after 50 years of weathering, mature trees, businesses settling in, and a little graffiti. It’s very hard to build something brand new and have it be funky and charming on day one.