An application was submitted that would allow for modifications of a three-story mixed-use building located at 4758 Mission Street in the southern part of San Francisco. The renovations would include the construction of four new residential units, accessible through the existing building’s rear yard area. Architecturally, the building’s envelope is to remain unchanged.
The existing building contains both residential and commercial spaces. Modifications will be made to the basement and first-floor commercial space, allowing for the new residential units. Meanwhile, the existing third-floor residential units will remain unchanged by the project. The plan’s scope will also allow for renovation upgrades to the remaining commercial space.

4758 Mission Street Proposed vs Existing Rear Exterior, image by RDK

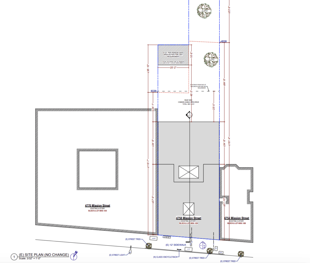
4758 Mission Street Site Plan, image by RDK
The building is located at the border of San Francisco’s Balboa Park and Excelsior neighborhoods. While both neighborhoods hold to relatively modest density by city averages, the position along a commercial corridor between the two makes the property a strong candidate to become a denser parcel. The site is already within a short walk of multiple bus and transportation options, as well as multiple stores and community resources. Furthermore, an increase in density along an already busier corridor minimally disrupts the culture or atmosphere of the neighborhood.

4758 Mission Street Site Location, image via ArcGIS Online
Subscribe to YIMBY’s daily e-mail
![]()
Follow YIMBYgram for real-time photo updates
Like YIMBY on Facebook
Follow YIMBY’s Twitter for the latest in YIMBYnews






Be the first to comment on "Application Submitted for Conversion of a Mixed-Use Building at 4758 Mission Street in San Francisco"