New building permits have been filed for the approved mixed-use project at 1333 Columbus Avenue near Fisherman’s Wharf, San Francisco. The development is looking to replace a vacant building with a four-story apartment complex. Chicago-based Aventine Property Group is listed as the property owner.

1333 Columbus Avenue second-level floor plan, illustration by DMARCstudio

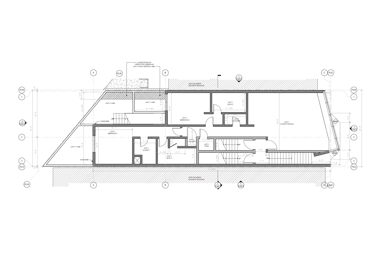
1333 Columbus Avenue, cross-section by DMARCStudio
The 47-foot-tall structure is expected to produce around 6,250 square feet, including 4,850 square feet of housing, 1,400 square feet of commercial retail, and parking for four bicycles. The complex will include three two-bedroom apartments, with the top floor including access to a rooftop deck.
Berkeley-based DMARCstudio is responsible for the design. The overall design has not changed since the plans were approved last year. Renderings show the modern street-facing facade, contrasting an angled glass-box bay window with a dark brick wall and vertical wood siding.

1333 Columbus Avenue, image via Google Street View
The property is located at the northern end of Columbus Avenue between Beach Street and North Point Street. Future residents will be close to the Aquatic Cove, the Fisherman’s Wharf, and the Hyde Street Cable Car station.
Public records show the property last sold in 2024 for $650,000, with the previous owner listed as Santa Rosa-based Synergy Group. Construction is estimated to cost around $1 million, a figure not inclusive of all development costs.
Subscribe to YIMBY’s daily e-mail
![]()
Follow YIMBYgram for real-time photo updates
Like YIMBY on Facebook
Follow YIMBY’s Twitter for the latest in YIMBYnews






Aesthetically nice, but I really don’t understand why anyone would want to live like a zoo animal inside their own home. Everyone on the streets looking in. I don’t get that.
Shades and glazing exist. In fact, it’s easier than ever to find privacy solutions.
Dance like nobody’s watching is what I always say.