Preliminary permits have been filed for a small residential infill project at 2519 Victorian Alley in Newton Booth, Sacramento. The proposal looks to bring four units to a vacant lot in a boxy construction. Skyline Build and Design Inc. is the project designer and contractor.

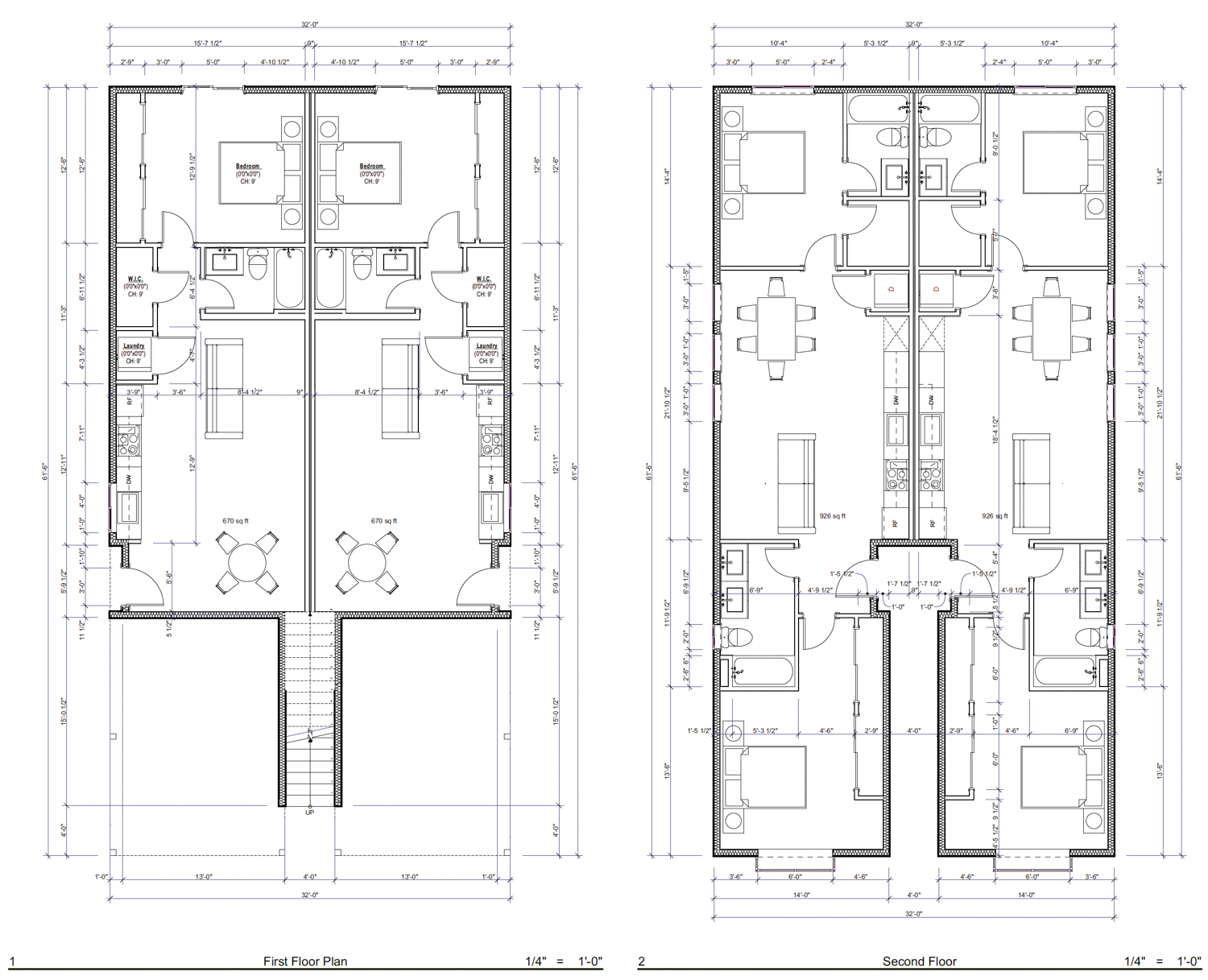
2519 Victorian Alley floor plans, illustration by Skyline Build and Design Inc

2519 Victorian Alley elevations, illustration by Skyline Build and Design Inc
The 21-foot-tall structure will yield around 3,200 square feet, with two apartments occupying the second floor and two ground-level Accessory Dwelling Units. Each ADU will offer 670 square feet, with 926 square feet for the larger two-bedroom residences. Illustrations of the potential design show an unattractive box infill with an angled roof and bay windows overlooking the alleyway.

2519 Victorian Alley, image via Google Street View
The small 0.08-acre property is located along Victorian Alley between 25th Street and 26th Street, next to the Merryhill Elementary & Middle School campus. Future residents will be in the lower corner of the affluent neighborhood, which is defined by some older Craftsman bungalows and the proximity to popular shops.
City records show the property last sold this February for $230,000. The estimated cost and timeline for construction have yet to be established.
Subscribe to YIMBY’s daily e-mail
![]()
Follow YIMBYgram for real-time photo updates
Like YIMBY on Facebook
Follow YIMBY’s Twitter for the latest in YIMBYnews






It could be uglier, I guess, but you’d have to work really hard.
Ha!
Couldn’t agree more.
Do they think it’s 1962?!?