Permits have been filed for a new single-family infill at 1173 Hollister Avenue near Bayview in San Francisco. The development will replace an existing house with a larger unit, without increasing residential density in the low-slung Bret Harte enclave. The property owner is listed as a New York-based individual associated with Abushi Automotive Design, a high-end custom auto shop.

1173 Hollister Avenue rear view, illustration by Atelier Design

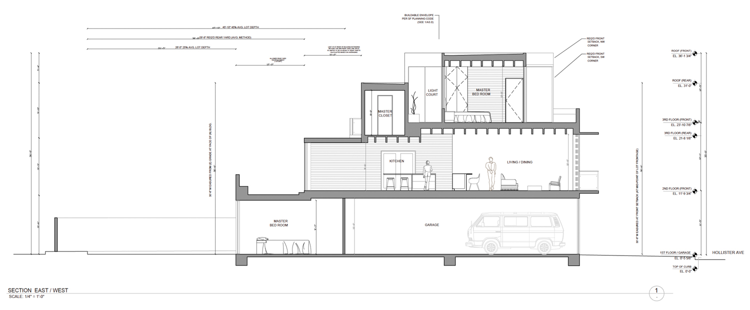
1173 Hollister Avenue vertical cross-section, illustration by Atelier Design
An existing two-story house, spanning just 1,220 square feet, will be demolished. Construction will produce a new three-story complex containing roughly 3,650 square feet with a one-car garage. Fathi Abushi of Atelier Design is responsible for the architecture. Illustrations depict a contemporary, modern-style complex wrapped in charred wood, painted wood, and steel panels.
The infill lot is located along Hollister Avenue between Ingalls Street and Jennings Street. Future residents will be about a block away from the Third Street & Gilman Avenue light rail station, and two blocks from a grocery corner store.

1173 Hollister Avenue, image via Google Street View
Public records show the property last sold in 2014 for $275,000. The estimated cost and timeline for construction have yet to be shared.
Subscribe to YIMBY’s daily e-mail
![]()
Follow YIMBYgram for real-time photo updates
Like YIMBY on Facebook
Follow YIMBY’s Twitter for the latest in YIMBYnews






Slightly off topic, but please, city of SF, build a few thousand affordable housing units on Candlestick near this site, and close the SROs in the Tenderloin. The conditions of the SROs are horrible and the majority of the people getting high in the TL live in them. It’s not good for anyone. Build a little city of affordable housing, anywhere from 10% of AMI to 80% or whatever, along with a grocery store and basic services. Get all of the very poor people OUT of the Tenderloin, which is negatively impacting the entire downtown area.
Candlestick does have the land, but there is no public transportation that goes out there.