Preliminary permits have been filed for a new apartment enclave in the Vista Del Mar neighborhood of San Francisco. The project, dubbed Sutro Cove, would replace two cliffside homes at 641-645 48th Avenue with twenty new for-sale apartments. Stanley Saitowitz Natoma Architects is responsible for the application and design.

645 48th Avenue street view, rendering by Stanley Saitowitz Natoma Architects

645 48th Avenue overlooking the garages, rendering by Stanley Saitowitz Natoma Architects

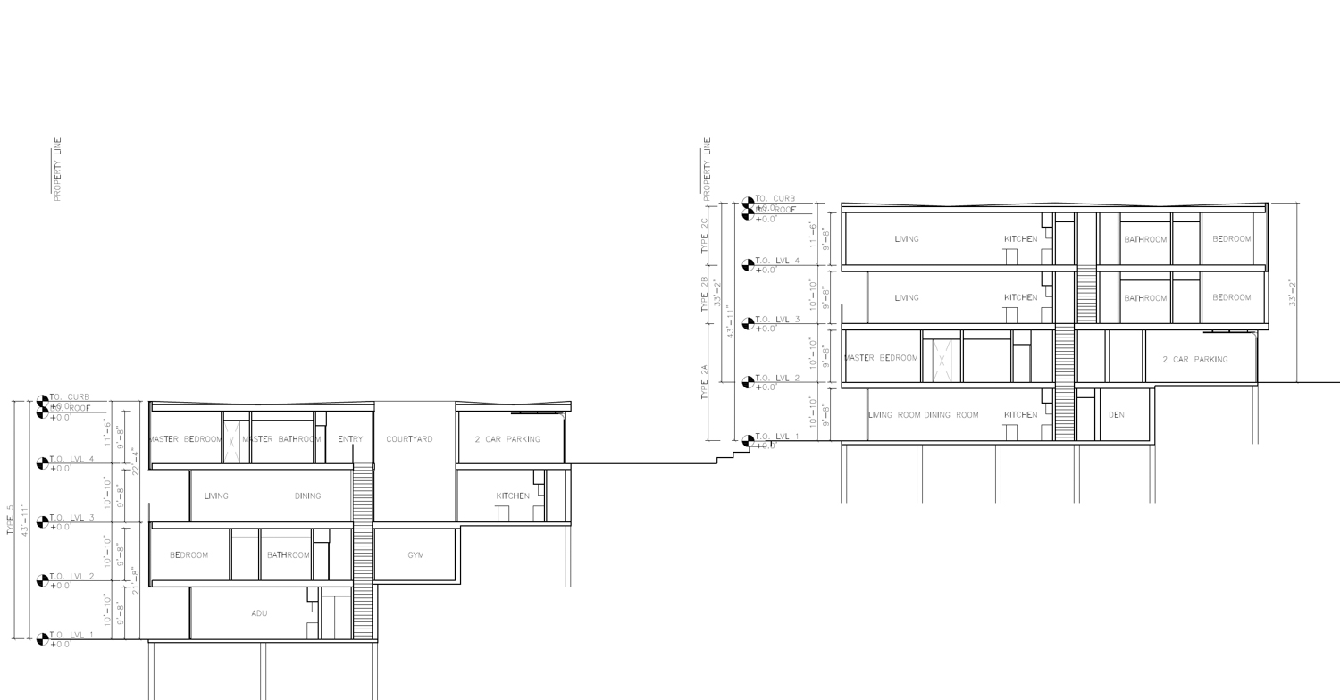
645 48th Avenue vertical cross-section, illustration by Stanley Saitowitz Natoma Architects
Illustrations show the complex will feature a familiar design from the high-tech architecture firm. The street-facing facade will feature floor-to-ceiling glass and solid panels, such as cast-in-place concrete, with a sloped driveway that provides residents and pedestrians with a stunning view of the ocean over the lower structure. The lower building’s western facade, visible from the Great Highway, features protruding bowed windows and inset balconies, offering residents a panoramic view of Ocean Beach.
The development is expected to produce three four-story buildings. The complex will include 20 units, of which two will be deed-restricted as affordable to households earning around 80% of the area’s median income. Dwelling sizes will vary with six studios, eight two-bedrooms, four three-bedrooms, and two four-bedrooms. Parking will be included for 18 cars across several covered garages.

645 48th Avenue internal driveway, rendering by Stanley Saitowitz Natoma Architects

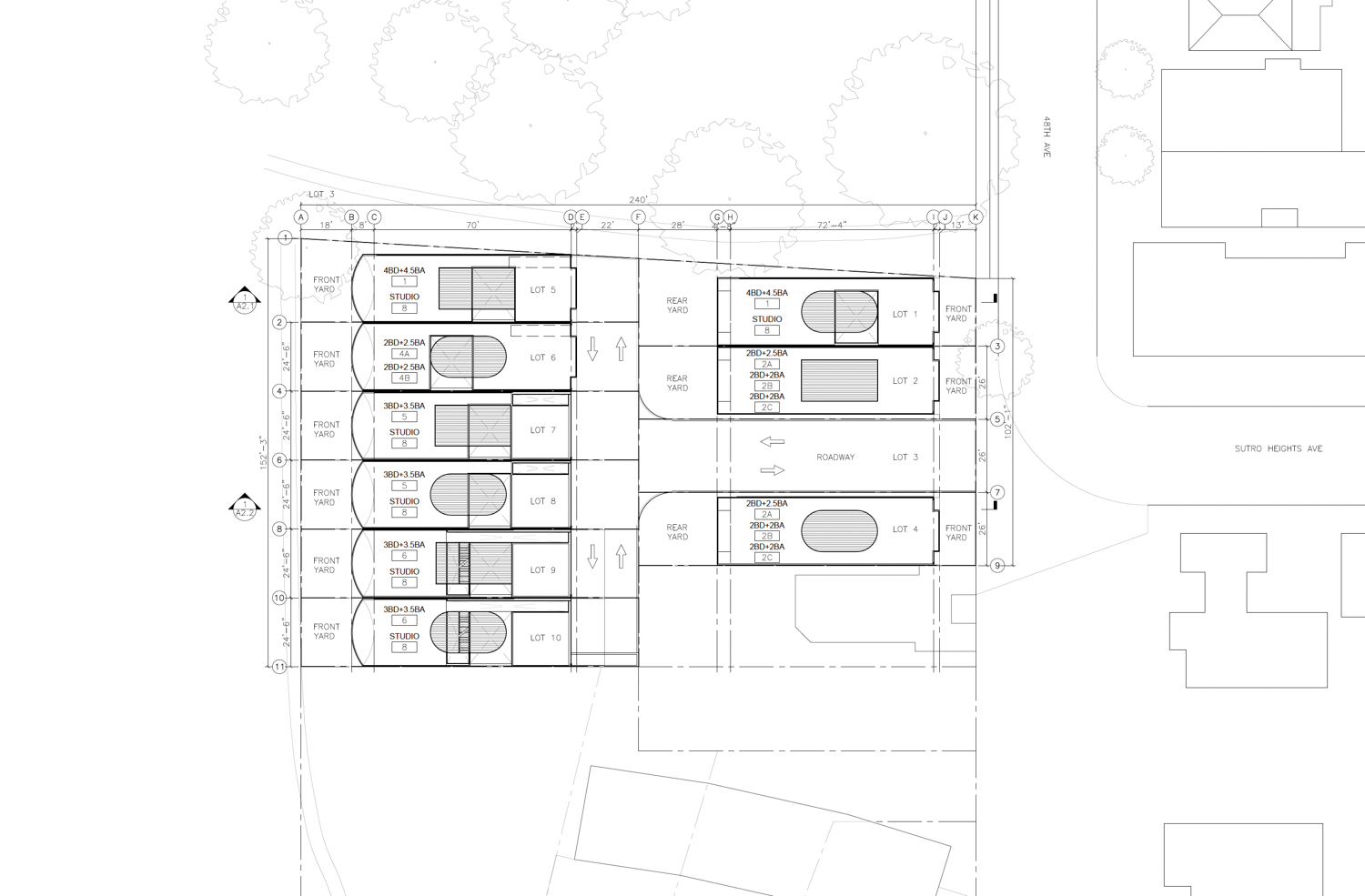
645 48th Avenue site map, illustration by Stanley Saitowitz Natoma Architects

645 48th Avenue, image via Google Street View
The 0.7-acre property is located at the corner of 48th Avenue and Sutro Heights Avenue, within the Vista Del Mar neighborhood of the Outer Richmond. The cliff-side property is next to protected open space maintained by the National Park Service, ensuring residents will have stunning views. The nearest grocery store is Safeway at 850 La Playa Street, where Align Real Estate plans to add more than 500 apartments.
The preliminary application invokes Senate Bill 423 to streamline the approval process for a future formal planning application.
Subscribe to YIMBY’s daily e-mail
![]()
Follow YIMBYgram for real-time photo updates
Like YIMBY on Facebook
Follow YIMBY’s Twitter for the latest in YIMBYnews






“For sale apartments” are condominiums, right? So why not call them that?
Because “apartment” isn’t a term that connotates ownership vs rentership. It refers to the physical geometry/arrangement of the housing.
Thanks for doing your part to make sure that disabled San Franciscans end up homeless.
Single family homes can also be condominiums. The author could have used the term “condos” but it would not have been clear what type of development was being built.
Who cares what they call them. They indicate that the units will be purchased as separate residences. That’s all that matters.
Everywhere except NYC, Apartments means you lease it. Condo means you own it.
I’ve been in the multi family industry for over 40 years. Matt’s definition of condo/ apartment is correct.
I will buy one of these when they are built. Amazing project. Those 2 homes currently there have been blights on the neighborhood for too long.
How about restore the two coolest houses in the neighborhood, but subdivude and develop the rear yards (that are currently homeless encampments and trash gardens). Not quite as many units, but a decent compromise that preserves the fabric of the neighborhood.
Elephant in the room… all of these Yimby projects are 99% MARKET RATE housing.
And won’t do anything to lower SF’s house prices.
It’s just ugly, and cheap looking and I really like modern architecture.
Sutro Cove? Not Kelly’s?