Updated permits have been filed for a residential expansion at 268 Fair Oaks Street in San Francisco’s Dolores Heights neighborhood. The proposal would increase the site capacity from three to six for-sale apartments. Burlingame-based Arcus Housing is listed as the property owner.

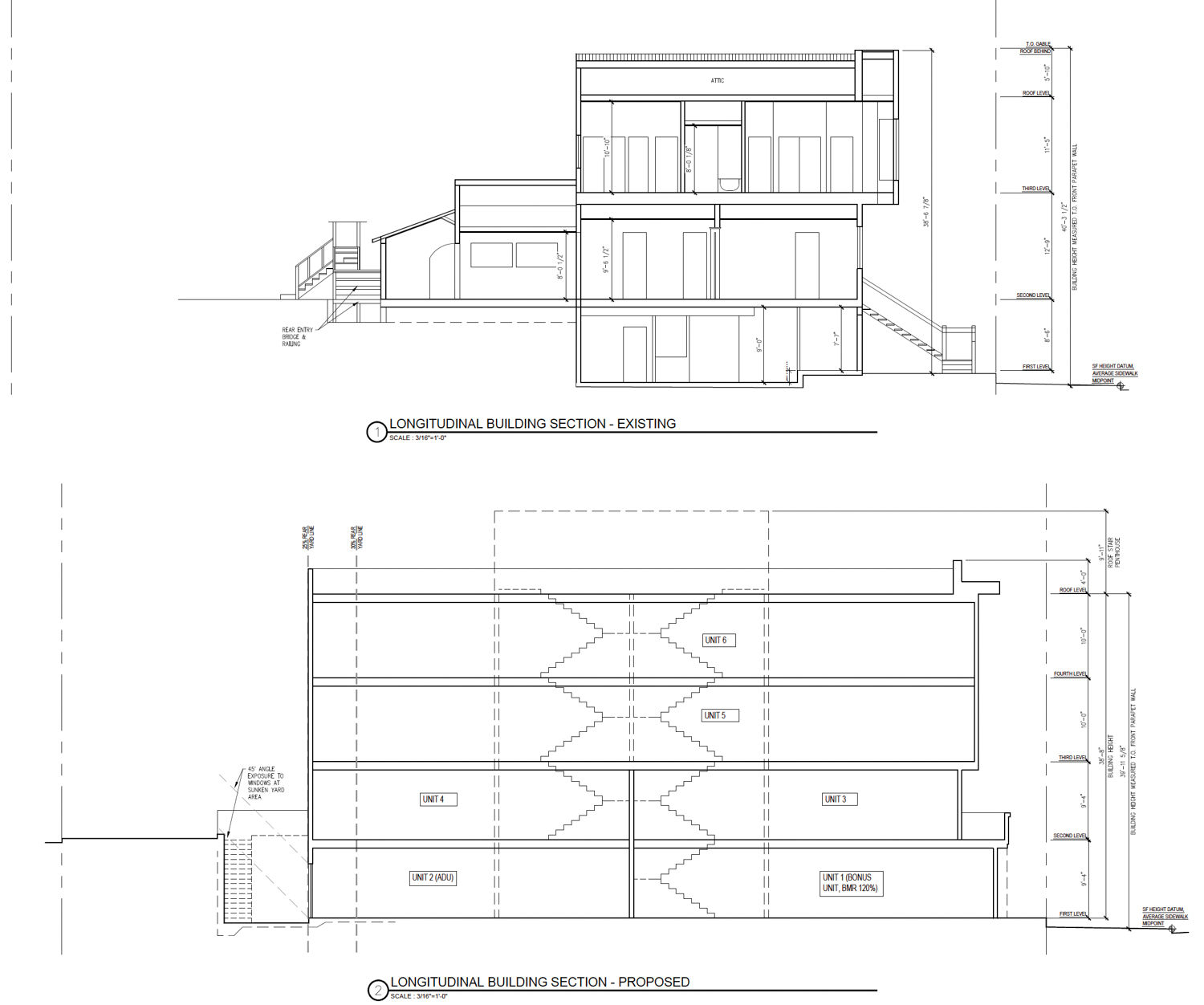
268 Fair Oaks Street vertical cross-section, illustration by Shatara Architecture
The project will include one below-market-rate unit available for ownership, designated for a moderate-income household earning about 120% of the area’s median income. This inclusion has allowed the developer to invoke the State Density Bonus law and increase residential capacity.
The expanded structure is expected to rise four floors and yield approximately 9,200 square feet, including six apartments and parking for 4 cars. The structure will include two stairwells, with resident access possible from Fair Oaks Street and Quane Street. Apartment sizes will vary with the one-bedroom BMR unit, three two-bedroom units, and two four-bedroom units.
Shatara Architecture is responsible for the design. Renderings have been published, but the facade elevations show a vernacular urban design, with a boxy exterior wrapped in hardie board siding and stucco-clad bay windows facing the front and rear.

268 Fair Oaks Street facade elevations, illustration by Shatara Architecture

268 Fair Oaks Street, image via Google Street View
The site is currently improved with a two-story structure with two studios and one two-bedroom apartment. The 0.08-acre property extends from Fair Oaks Street to Quane Street. The two narrow alley-like streets are on a block bound by 23rd Street, 24th Street, Guerrero Street, and Dolores Street. The site is just three blocks away from the 24th Street Mission BART Station, and two blocks away from the Noe Valley town square.
The estimated cost and timeline for construction have not been established.
Subscribe to YIMBY’s daily e-mail
![]()
Follow YIMBYgram for real-time photo updates
Like YIMBY on Facebook
Follow YIMBY’s Twitter for the latest in YIMBYnews






Be the first to comment on "Permits For Residential Expansion at 268 Fair Oaks Street, Dolores Heights, San Francisco"