New building permits have been filed for the eight-story redevelopment of the Alexandria Theater in San Francisco’s Richmond District. The permits aim to replace the historic 103-year-old theater with an 83-unit apartment complex with retail. Timespace Group is the project sponsor.

5400 Geary Boulevard seen from along 18th Avenue, rendering by G7A

5400 Geary Boulevard ground-level floor plan, illustration by G7A

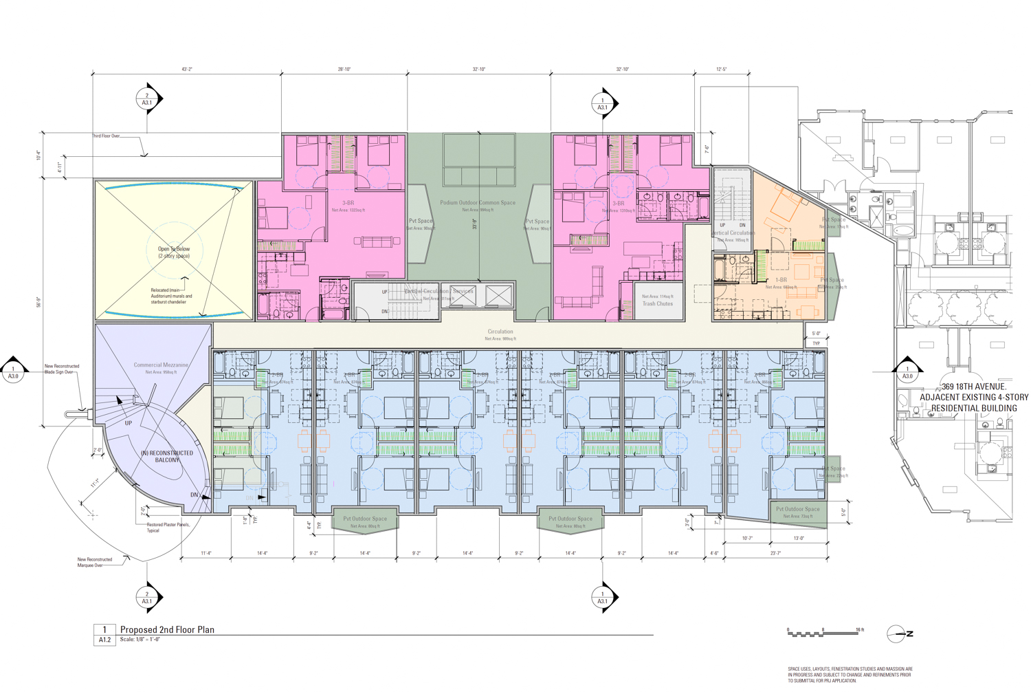
5400 Geary Boulevard second-level floor plan, illustration by G7A
The new building permits have been filed and are now under review by the city’s planning department. Preliminary permits were filed last October and are still under review by the city. The application invokes Senate Bill 423 to streamline the approval process and benefits from the city’s special use district established in 2024, targeting this singular lot. The Alexandria Theater Special Use District was approved to allow “a density bonus and modifications to existing zoning controls for a residential project in the SUD.”
The 81-foot-tall structure is expected to yield approximately 103,825 square feet, including 76,500 square feet for housing, 3,200 square feet of commercial retail space, and 10,500 square feet of amenities. Unit sizes will vary with 14 one-bedrooms, 51 two-bedrooms, and 18 three-bedrooms. Ten units will be deed-restricted as affordable housing, eight of which will be for low-income households and two for moderate-income households. Parking will be included for 94 bicycles.

5400 Geary Boulevard seen from along 18th Avenue, rendering by G7A

Alexandria Theater existing condition, image from Timespace Group
Gonzales Architects is responsible for the design, and Fletcher Studio is responsible for the landscape architecture. Renderings show the complex will be wrapped in a grey facade, with cement balconies and glass railings, and a rebuilt Alexandria blade sign. The project will also preserve the exterior marquee, interior sunburst chandelier, the art deco murals in the lobby, and have new interior features match or complement the refurbished space. The structure will be setback after the fifth floor, the original structure’s height.
The 0.35-acre property is located along Geary Boulevard between 18th Avenue and 19th Avenue. The estimated cost and timeline for construction have yet to be shared.
Subscribe to YIMBY’s daily e-mail
Follow YIMBYgram for real-time photo updates
Like YIMBY on Facebook
Follow YIMBY’s Twitter for the latest in YIMBYnews






This theatre has been empty for how long now?? And it will probably take that long again to get this project underway.
All this effort for an 8-story building on GEARY. Why isn’t this entire street zoned for 50-story buildings?
You can’t have 50 story buildings directly next to each other so I’m not sure that adds up. Better to have a series of 6-20 stories.
50 stories makes zero sense on this section of Geary
No one is EVER going to build a 50-story building on Geary. There aren’t THAT many tech bros, are there?
Not entirely true.
“While many west-side commercial corridors were recently rezoned for 10-story buildings, the Geary–Masonic intersection allows for much higher density—up to 65 stories in some parcels, a dramatic increase from earlier 30-story proposals.”
Good project, nice height, but are we seriously still on Millennial Gray? Just match the color of the existing building, jesus..
Parking for 94 bicycles?!?
What about parking for cars in the building??
They can’t expect all those residents to find parking on the street. That’s unrealistic and will harm businesses in the area
Totally agree!!!
Agreed! More local customers and affordable housing for employees is about the worst thing there is for businesses.
Geary Blvd. has some of the most frequent public transit service of any street in the western U.S., with multiple other frequent bus routes accessible within a seven minute walk. Fortunately many, if not most (or perhaps all), of the residents will do just fine without a car.
“Affordable housing” will still be atrocious
parking parking parking for cars too please. The neighborhood already has parking issues. If you are finally going to develop this property that has been an eyesore for 20 years, do it right. Connie Chan since you are taking this as a win, make sure it serves the neighborhood in the most positive way.
From my perspective, Connie Chan has been far too beholden to motorists and oppositional to those who choose to walk, bicycle or otherwise navigate this city outside of an automobile. Her knee jerk response seems to be opposition to car-free spaces, like JFK Parkway and Sunset Dunes.
For San Francisco to become a more livable, safe and climate resilient city, it needs more housing with less car parking. This site in question is optimal for such a project.
Couple of quick notes: the lower 5-stories is being proposed to be of a buff or cream colored brick veneer tile (similar to the current building’s hue and that found at the Market Hall interiors at the Port of SF building) and a soft dove gray for the remaining 3 stories. There will be off-street parking available at TSG’s building next door.
The average car is driven only 5% of the time. It’s a waste of urban space. Transit, bicycles and rideshare are a much more sensible approach.