The Berkeley Design Review Committee is scheduled to review plans tonight for the eight-story apartment complex at 2138 Kittredge Street in Downtown Berkeley, Alameda County. New renderings have been published, providing the closest look yet for the 66-unit infill expected to rise across from the now-closed California Theater. The Austin Group is responsible for the application.
The 82-foot-tall structure is expected to yield around 42,900 square feet for 66 apartments. The site will include five units of affordable housing, of which three will be for very low-income households and two for extremely low-income households. Unit sizes will vary with 46 studios, 12 one-bedrooms, and seven two-bedrooms. Parking for 28 bicycles will be included.

2138 Kittredge Street establishing view, rendering by Niles Bolton Associates
Niles Bolton Associates is responsible for the design. The new rendering published provides a more realistic visual for the future building, though the overall design has not changed compared to the previous isometric illustration. The infill building will feature narrow floor-to-ceiling windows with white and sandstone panels.
The property is currently occupied by the Fitzpatrick House, a 122-year-old Georgian Revival brick building. In late July 2025, the Berkeley City Council rejected the Landmark Preservation Commission’s recommendation to landmark the historic structure.

2138 Kittredge Street, image via Google Street View
The 0.15-acre property is located along Kittredge Street between Oxford Street and Shattuck Avenue, half a block from the southwest corner of the UC Berkeley campus and two blocks from the Downtown Berkeley BART Station. The site is next to 2176 Kittredge Street, a relatively new apartment complex designed by Kava Massih Architects, and across the street from the California Theater, which, until mid-2025, was expected to be converted into a 23-story residential tower.

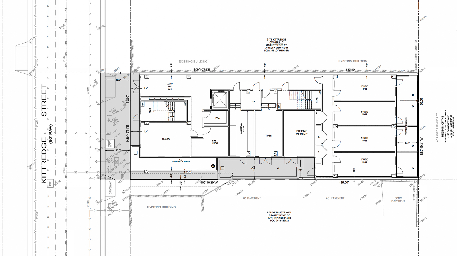
2138 Kittredge Street floor plan, illustration by Niles Bolton Associates
The Berkeley Design Review Committee is scheduled to meet tonight, Thursday, April 16th, starting at 6:30 PM. The hybrid event will occur in-person at the South Berkeley Senior Center and online via Zoom. For more information about how to attend, visit the city website here.
Subscribe to YIMBY’s daily e-mail
![]()
Follow YIMBYgram for real-time photo updates
Like YIMBY on Facebook
Follow YIMBY’s Twitter for the latest in YIMBYnews






Maybe naive question, but why in the world is white such a popular color for these 5-over-1 type buildings? I feel like it (like millennial gray) looks so cheap and discolors easily. Why not pick something that at least mimics masonry, instead of something that looks like its mimicking ikea plastic furniture.
Ground floor commercial please! Cities are vibrant when people can live near their work, and shop near their homes!
Downtown Berkeley already has a ton of commercial. In places with adequate or excessive commercial space, residential-only buildings are a good addition for increasing the density of customers.