New building permits have been filed for a small four-story infill at 701 San Bruno Avenue in San Francisco’s Potrero Hill neighborhood. The application looks to replace a single-family residence with a much larger home and an in-law unit. Vadim Kogan is listed as the property owner.
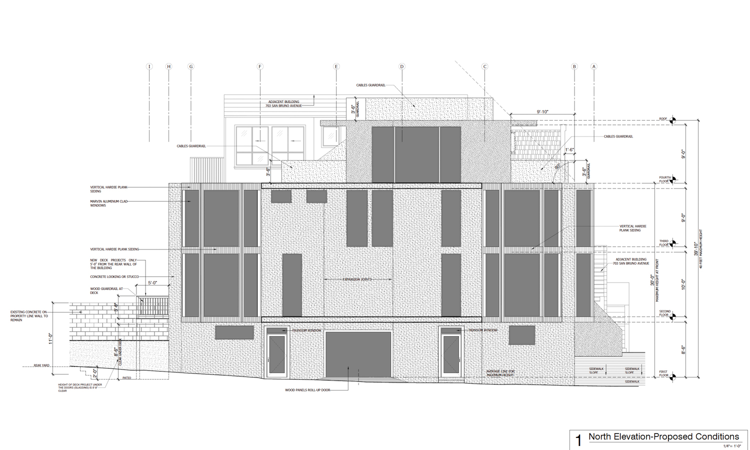
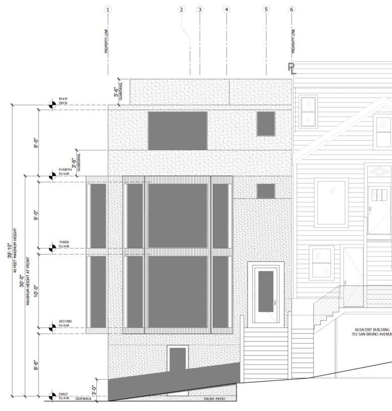
The proposed 41-foot-tall house is expected to yield around 5,260 square feet, almost double the size of the existing home. The ground-floor accessory dwelling unit will be a one-bedroom apartment with access to a private patio. The primary house will include three bedrooms and two rooftop decks. Parking will be included for a car and two bicycles.

701 San Bruno Avenue north elevation, illustration by Carlos Alfaro
Carlos Alfaro is listed as the project architect. Illustrations offer a glimpse into the potential design for the site, featuring floor-to-ceiling glass, bay windows, and a top-floor setback. Facade materials include Hardie Plank siding and a concrete or stucco cladding.
Public records show the property last sold in early November 2024 for $1.57 million. According to a historic resource review, the wood-frame structure was built in 1907 with a front gable, flat roof, and vinyl cladding installed in 2001.

701 San Bruno Avenue existing condition, image via Google Street View
The property is located at the corner of 19th Street and San Bruno Avenue. The site is one block from the Potrero Hill Community Garden and McKinley Square.
Subscribe to YIMBY’s daily e-mail
![]()
Follow YIMBYgram for real-time photo updates
Like YIMBY on Facebook
Follow YIMBY’s Twitter for the latest in YIMBYnews






Looks like a 1990s-era live work loft for a Russian oligarch. So charming, just like San Francisco is now.
The problem with units like these is no one really wants to live this way. They generally have zero sound insulation, and it becomes a nightmare to live in them. No sound or noise ordinances enforced, so it’s just a ghetto. Nope. Not the answer.
Let’s see the products used between floors and shared walls for sound insulation. Oh right…there isn’t any. Rooftop deck? I hope you don’t get the unit under that, because there will be zero sound insulation, or repercussions for those breaking quiet hours. Nope. Not even fit for an animal.