Plans for a mixed-use redevelopment at 2055 Chestnut Street in San Francisco’s Marina District appear to have been nixed in favor of expanded retail space. Previously approved entitlements expected to replace the bank structure and surface parking with a 49-unit apartment complex with ground-floor retail. Now, the project will expand the existing structure across half the lot while retaining the Lombard Street-facing surface parking. The Prado Group is the project sponsor, filing on behalf of the Burlingame-based property owner, The Bruni Company.

2055 Chestnut Street updated retail space, rendering by Jensen Architects

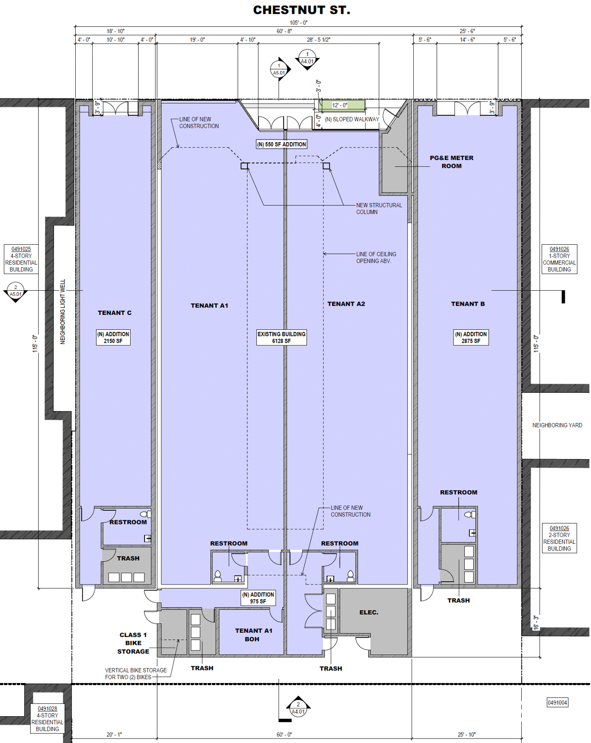
2055 Chestnut Street proposed floor plans, illustration by Jensen Architects
Construction will involve partial demolition of the existing structure to facilitate the expansion, while retaining much of the existing rooftop, including the distinctive sawtooth clerestory dormers. The structure will include four narrow retail spaces: two spaces divided within the existing structure and two retail spaces built over the narrow driveways connecting Chestnut Street to the Lombard Street-facing parking lot.
Jensen Architects is once again responsible for the design. Illustrations for the proposed exterior show a familiarly uninspiring contemporary aesthetic, clad in grey, white, and brown tiles, stucco, and floor-to-ceiling windows.

2055 Chestnut Street, image via Google Street View
The property is located along the retail-lined Chestnut Street thoroughfare and near Marina Middle School. The block is bound by Steiner Street and Fillmore Street. The Marina Green athletic field is around ten minutes away on foot.
The existing parking lot facing Lombard Street will remain. Construction is estimated to cost around $2.75 million, with a timeline not yet established.
Subscribe to YIMBY’s daily e-mail
![]()
Follow YIMBYgram for real-time photo updates
Like YIMBY on Facebook
Follow YIMBY’s Twitter for the latest in YIMBYnews






The evil NIMBYs in the Marina succeeded
I don’t think the NIMBYs can be blamed for this.
INSANE.
Then build the Safeway high-rise — at all costs.
Any indication of what caused the Indian shift for plans here? Was there more than usual pressure from “concerned neighbors” or some bad math outcome that compromised financing?? Seems like a loss for everyone including the developer.
Meant to say “Insane” not “Indian”. Thank you Siri.
Seems like a complete no-brainer to redevelop this site with residential over retail. Textbook infill. Honestly, constructing new one-story buildings in areas like this should be illegal.
This is quite a disappointment. This is prime real estate at an awesome location, and removing the housing component is why we are in such a housing crisis
They (Bruni family) could not get it financed. Sadly it makes more sense to do one level retail.
Sad. I guess this is what you get when you vote for a NIMBY mayor who parades around on Instagram pretending to be YIMBY.
I think you’ve got it backwards there. Other than Lurie having concerns about the Marina Safeway site (ethics, perhaps legality of how applications were filed) what part of anything he’s ever said or legislation passed has been aligned with NIMBYism? Show me receipts.
Happy to show receipts: I think Mayor Lurie is talking a major YIMBY game, but the family zoning plan actually produces LESS housing than what the city needs to produce per the housing mandate (New report says SF Family Zoning Plan will fall short of state housing mandates | SF Standard)
Also, as for the Marina Safeway project, the developer is using SB330 as designed, submitting the project and locking in zoning until it changes, under the family zoning plan. (We asked every S.F. politician about the Marina Safeway proposal. Here are their answers. | Mission Local)
The plan is sneaky; it kills the density bonus and attempts to otherwise out-maneuver state zoning, standardized (and lowers) height limits where they wouldn’t previously apply (YIMBY Law Petition | San Francisco Family Zoning Plan)
The thing about the housing reforms in CA, because of our high costs and existing constraints like Mandatory Parking Minimums, building codes, these buildings pencil out narrowly, or not at all, and any attempt to retroactively apply additional ones is a sure way to block things like Marina Safeway. This dynamic is already playing out in Presidio Terrace, with neighbors who have the financial & cultural capital to slow housing production. (Luxury housing was planned for this S.F. campus. The city’s ‘Family Zoning’ plan scrapped it | SF Chronicle).
Note: It wasn’t me letting post that reply with links, just copy + article titles into google)
> Other than Lurie having concerns about the Marina Safeway site (ethics,
What is unethical about providing housing for people?
I cannot wait to see builders remedy completely build 50 story skyscrapers in the marina. cannot wait enough !
Massive under-utilization of a significant parcel and a surprisingly lame design.
The site is a Housing Element site, therefore the Not Net Loss Law is triggered and the City must verify that its remaining inventory still meets state-mandated housing targets or identify a replacement site to make up for the 49 lost units.
I think it’s a cool structure. A variety of architectural styles and periods in the urban environment is good!
A wasted opportunity. And new retail space is often too costly for anyone but chains to afford. Blah.
What’s crazy about brutalism is that it was never popular with common people at any point, yet you can find it in every major city. It was astroturfed into relevancy by architects which is why it’s rarely been used for anything other than university and government buildings.
It’s pretty simple guys. Residential development doesn’t make money these days which is why we haven’t seen many cranes in the city over the last 7 years. The developers would rather have something get done for the community while perhaps retaining the rear lot for residential as opposed to having a vacant building for the next 10 years. No brainer.