Plans have been approved, and new building permits have been submitted for three four-story apartment infills at 819-831 Alabama Street in San Francisco’s Mission District. The development is looking to produce nine apartments. Bana Construction Inc. is responsible for the development as the project sponsor.

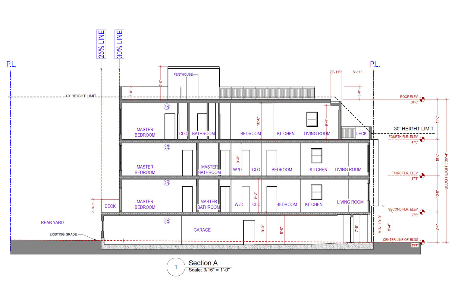
819-831 Alabama Street vertical cross-section, illustration by S&P Structural Engineers
Each structure is expected to rise four floors, with two primary dwellings above an accessory dwelling unit. Each garage will provide parking for three cars and three bicycles.
S&P Structural Engineers is listed as responsible for the design. Illustrations have not been updated since preliminary permits were filed last year. The three structures will feature a familiar value-engineered vernacular with boxy bay windows and a top-floor setback overlooking Alabama Street.

819-831 Alabama Street rear view, illustration by S&P Structural Engineers

819-831 Alabama Street, image via Google Street View
The currently-vacant property is located along Alabama Street between 20th and 21st Street. Future residents would be just ten minutes away from Mission Street thoroughfare, and less than twenty minutes away from the 24th Street Mission BART Station on foot, or five minutes by bicycle.
The estimated cost and timeline for construction have not yet been shared.
Subscribe to YIMBY’s daily e-mail
![]()
Follow YIMBYgram for real-time photo updates
Like YIMBY on Facebook
Follow YIMBY’s Twitter for the latest in YIMBYnews






Scrap the parking, double the unit count and show me something that feels less like 1950s inspired townhomes that litter the Sunset and we’re in business.
Souless dingbats. Well, at least it’s a vacant lot instead of a row of Victorian cottages. San Francisco should really have a design review committee. These so-called “objective design standards” have unleashed a tidal wave of substandard Scheisse unfortunately.
Loser mentality.
I am starting to think that you and Kartik are both 11 years old.
If you’re gonna regugaite sh*t, you’re gonna get called out for it.
Just so happens 90% what you type fits the category. We don’t make the rules; it’s just in the NIMBY bi-laws. Educate yourself.
I have educated myself. That’s the problem. How does it feel to be undeducated? Asking for a friend.
P.S., Someone’s got to do this….the entire state government has been captured by this astroturf East Coast “movement.” And a “movement” it is. Of the bowel variety.
If you’re going to use big words, at least spell them correctly.
Good project, although, as usual, I wish we had something other than oddly asymmetrical gray boxes for facades.
Sorry Scotty…that note was for Drew.
Scotty, open up you check book and get out there and build what you want to see. Join small development groups and clean up you gleaning ass**** attitude. Then, you might have ideas that persist into the real word. Good luck!
Double the parking and we’re in business