The Oakland Planning Department has approved plans for a narrow mixed-use infill at 6518 San Pablo Avenue in North Oakland, Alameda County. The proposal looks to add ten apartments behind a street-facing storefront. Design Manou is the project architect and applicant, filing through Farmy Zero LLC.

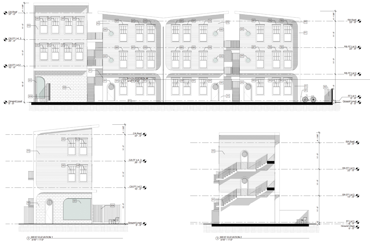
6518 San Pablo Avenue elevations, illustration by Design Manou

6518 San Pablo Avenue floor plans, illustration by Design Manou
The exterior will be clad with a mix of brick veneer, Hardie artisan siding, and stucco cladding. Illustrations show a cartoon-like design approach, including a narrow, arched entrance for retail, small circular windows, a scattering of color on the residential floors, and an extended rooftop awning over the residential walkway.
The narrow parcel is located along San Pablo Avenue between 65th Street and 66th Street, close to the city’s borders with Berkeley and Emeryville. Future residents will be just 13 minutes away from Berkeley Bowl West on foot, or 5 minutes by bicycle.

6518 San Pablo Avenue, via Google Street View
The roughly 40-foot-tall structure is expected to yield around 6,150 square feet, of which around 470 square feet will be for commercial use. The city has granted the project a five-year entitlement. The property owner is listed as an Oakland-based individual. The estimated cost and timeline for construction have not yet been shared.
Subscribe to YIMBY’s daily e-mail
![]()
Follow YIMBYgram for real-time photo updates
Like YIMBY on Facebook
Follow YIMBY’s Twitter for the latest in YIMBYnews






This looks sick!
Finally something unique for an apartment building. So tired of the cookie-cutter “design” across the country. Bravo to Design Manou!
Please to see someone making the effort. I bet the planning office with mess up their plans
~d
Why can’t we have more interesting designs like this. It’s simple, gorgeous, weird and memorable, dare I say, a new landmark? Would love for more developers to challenge themselves like this.
These colors are hideous.
MORE of this please. Oakland is perfect for this kind of creative architecture.
This design is horrible. What’s with the portholes? Why not replace with a large window?