Formal permits have been filed for the glassy multi-unit development at 641-645 48th Avenue along San Francisco’s Vista Del Mar neighborhood. The project will bring 20 units to the hillside property overlooking Ocean Beach. Stanley Saitowitz Natoma Architects is responsible for the application and design.

645 48th Avenue west facade, rendering by Stanley Saitowitz Natoma Architects

645 48th Avenue exterior view, rendering by Stanley Saitowitz Natoma Architects
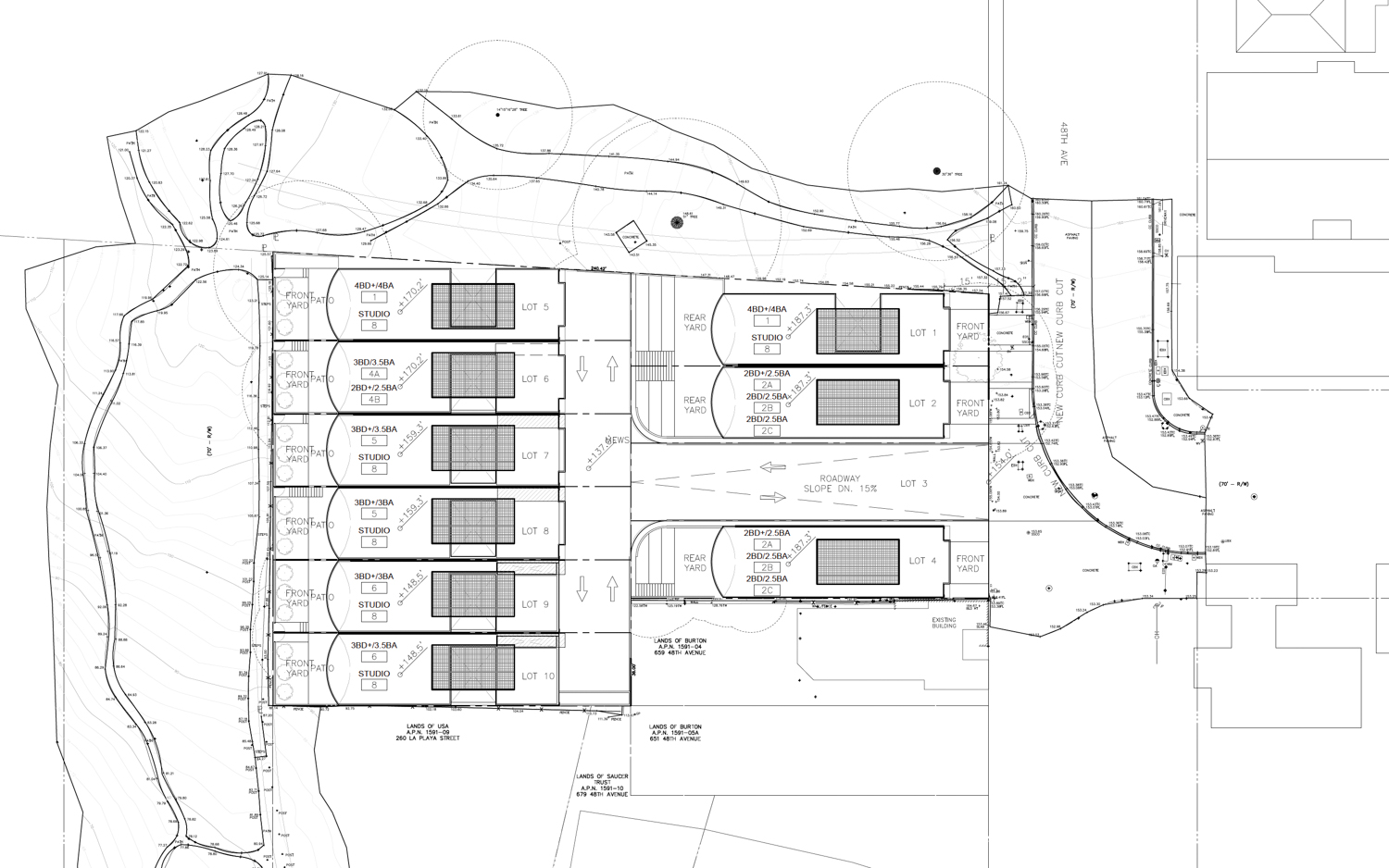
The multi-structure complex is expected to produce approximately 49,340 square feet, including 20 apartments and 18 parking spaces. Unit sizes will vary with six studios, eight two-bedrooms, and six three-bedrooms.
The application invokes Senate Bill 330 and SB 423 to streamline the approval process and increase residential capacity. Two units will be deed-restricted as affordable to households earning around 80% of the area’s median income.

645 48th Avenue central courtyard view, rendering by Stanley Saitowitz Natoma Architects

645 48th Avenue site plan, illustration by Stanley Saitowitz Natoma Architects
Updated renderings show alterations to the facades overlooking the interior driveway. The bowed glass exteriors overlooking the central court will not look like the west-facing exterior overlooking the Balboa Natural Area. The exterior will feature porcelain tile cladding and floor-to-ceiling windows.
The 0.7-acre property is located at the corner of 48th Avenue and Sutro Heights Avenue, within the Vista Del Mar neighborhood of the Outer Richmond. The cliff-side property is next to protected open space maintained by the National Park Service. The closest grocery store is the full-block Safeway at 850 La Playa Street, which Align Real Estate is planning to replace with more than 500 apartments.

645 48th Avenue, image via Google Street View
The estimated cost and timeline for construction have not yet been shared.
Subscribe to YIMBY’s daily e-mail
![]()
Follow YIMBYgram for real-time photo updates
Like YIMBY on Facebook
Follow YIMBY’s Twitter for the latest in YIMBYnews






I’m guessing someone named Burton at 651 – per the drawings – is being rather stubborn and not selling their home to be a part of this project. I’m assuming they were approached, as there are economies of scale of taking that property as well and making the project larger. Instead they are holding on. This project will potentially be impacting their view and surrounding them on multiple sides, say nothing of the 24+ months of construction. Tough situation if that happens to you. The rational decision is probably to sell, as your land is downgrading in quality of life, however people aren’t usually rational when it comes to their own home…
Is it really our duty to vacate our homes to make way for tech bros?
Not a duty at all, but unfortunately sometimes you’re on the receiving end of something you didn’t want, like a huge development next to your house, and you may want to flow with the current instead of fighting it. That being said, it looks like the ocean views may be retained, and you don’t find those very often..
That said, it’s a cool design. Too bad the older houses on the site can’t be moved and repurposed. Preserved buildings are greener than new construction due to embodied energy and higher quality materials. Best not to put them in the landfill.
Now I will always remember where RICHmond is!
There goes our haunted house.