Plans have been filed for a residential expansion of an existing mixed-use building at 998 Sanchez Street, located along the neighborhood borders of Dolores Heights and Noe Valley in San Francisco. The plans include a two-story vertical expansion and full residential conversion for the site. John Lum Architecture is responsible for the application and design.
Once complete, the 43-foot-tall structure is expected to yield around 5,690 square feet, producing two four-bedroom apartments. Commercial space on the ground floor will be converted to expand the existing unit. Parking will be included for two cars and two bicycles.

998 Sanchez Street vertical elevation, illustration by John Lum Architecture
According to the Historic Resource Evaluation, drafted by Tim Kelly Consulting, the structure was built in 1892 by Wilbur Briggs. The ground-floor commercial space was occupied by a grocer from 1892 through 1950, with little information known about future tenants.
John Lum Architecture is responsible for the design. The existing structure will be wrapped with replacement dark grey fiber-cement siding. The ground-level and vertical additions will be clad with vertical Accoya wood siding. Horizontal wood slat screens will provide shade and privacy to the top-floor and ground-level windows.

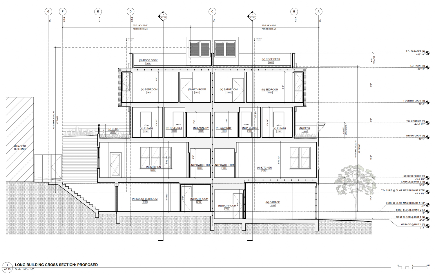
998 Sanchez Street cross-section, illustration by John Lum Architecture

998 Sanchez Street side view, rendering by John Lum Architecture
The property is located at the corner of Sanchez Avenue and 23rd Street, just a block away from the retail-rich 24th Street commercial center of Noe Valley. Mission Dolores Park is just 15 minutes away on foot, and for city-wide transit, residents will be close to the SF MTA’s J Line light rail.

998 Sanchez Street, image via Google Street View
Public records show the property last sold in 2000 for $725,000, with a few deed transfers for undisclosed sums occurring in 2008 and last year. Construction is estimated to cost around $1.125 million, a figure not inclusive of all development costs. The completion timeline has not been established.
Subscribe to YIMBY’s daily e-mail
![]()
Follow YIMBYgram for real-time photo updates
Like YIMBY on Facebook
Follow YIMBY’s Twitter for the latest in YIMBYnews






J’adore!
Count on John Lum.
Very nice design, John! I’m sure there are neighbors who are up in arms over it, but don’t let them water it down! One question: how do you clean the windows that are behind the wood screen?
I dig it. Nice design.
this is a tiny project and seems personal. why make it public for the nimbys to protest?
Can’t NIMBY private residences if within code, unless the literal neighbor.
Since development in SF is so slow, SFH gets the spotlight. Or just focus on the website in general. I haven’t seen any of the mansions I have worked on published yet, so I am curious which ones make the cut.
It is quite insane that neighbors can sue to release all the information about what’s getting built on property that is not their own. The NIMBYs really f’ed this city up.
Right. Residents should have absolutely NO influence over what is built in the neighborhood where they live. While I agree that many people (usually highly vested Boomers) would protest and try to stop ANY change in San Francisco neighborhoods, we’ve thrown the baby out with the bathwater by essentially giving builders/developers carte blanche.
Last year we had a flipper next-door to my house dump asbestos-covered ducting, tar and gravel, and lead paint-covered debris into the back yard in order to level it out for a lawn, as well as to avoid paying for legally dumping debris. I dropped a dime on them, but of course, this being the new YIMBY regime, the City said they could do nothing. Total wink-wink between deep-pocketed developers and the City. Disgusting.
Don’t forget, your boy Scotty Wiener tried to pull San Francisco out of the Coastal Commission zone. It is all about greasing the wheels for development.
Loser mentality.
Kinda stinkin like b*tch to the max.
WITHIN CODE. god you’re a loser.
Well, since you are a transplanted millennial who knows nothing about San Francisco, here’s a few examples of “NIMBYs” doing good work in keeping San Francisco, well, San Francisco.
Back in the 1960s there was this group of women in Glen Park who stopped Caltrans from ramming a freeway through the middle of Glen Canyon. The Gum Tree Girls, as they were called, kicked off the Freeway Revolt which stopped Caltrans from turning the entire city into a giant freeway interchange. Good, yes or no?
Amy Meyer stopped the federal government from selling off the Presidio to developers and instead make it part of the GGNRA. Good? Yes or no?
Frida Klussman stopped the City from getting rid of the cable cars.
San Francisco Heritage stopped the Redevelopment Agency from tearing down all of the Victorians in the Western Addition. What would this city be without Victorians?
But you don’t give a damn. You and your ilk are just here for the money, right? You contribute nothing and you actually want to wreck the city that so many of us love. You will not win. You will go back to the East Coast with your boy Wiener.
@Scotty:
If you aren’t in it for the money, you can’t afford SF. In a generation there will be nobody left who isn’t rich, no culture, and everyone you knew will be in Reno or wherever. But at least they will be able to enjoy how pretty it is here when they visit.
(or, we could build another few hundred thousands homes, and everyone would get to stay! but no, *that* would be wrecking the city)
“Go back to where you came from.”
Just admit that you’re a massive nativist and racist, man. Stop this pathetically transparent charade.
The discussion here about the lack of transparency in SF development is spot on. Since the building has such a long history as a grocer’s, it’s a shame we don’t see more mixed-use clarity. I’m curious about the financial backing for these small “personal” projects Drew mentioned—is there a standard for verifying the liquidity of these developers similar to how new regulated sectors operate? For example, I was reading about strict licensing and corporate transparency protocols on guiadesuperbetbrasil.com and wondered if San Francisco’s planning department requires a similar level of public verification for project funding to prevent these “undisclosed sum” transfers mentioned in the article?
The design doesn’t match with the current looks of the building. Could have taken more thought about this mew future layout coming. This beautiful building has been there since 1892 to 1950 as a grocery corner. Who ever owns that building needs to go back to the drawing board and let’s have better thinking how it should look. For now it’s not attractive design.
Soundd like none of your god damn business. It’s not your property and your subjective personal aesthetic preferences don’t matter at all.
loooooove
Great design!
Two blocks away. Elizabeth St is between 24th and 24rd.
Very Ugly! Looks like The Borg landed a colonization pod on top of a poor old Edwardian. Stop trying to make a statement, and just make something that looks nice. Oh, and just FYI the city is completely toothless/spineless when it comes to enforcing the actual number of units in the final product. Because single-family megaMcMansions command 10-15% higher per square ROI, this will end up as a de facto SFH. Nothing wrong with SFHs, but greasing the wheels of the approval process by lying is unethical and should be illegal (if indeed it is not).