Renderings have been revealed for a future four-story athletic and physical education facility at 2801-2835 Geary Boulevard, in San Francisco’s Lone Mountain neighborhoods. The proposal will replace the sixty-year-old Family Billiards pool hall with a new space for the K-12 students of the Schools of the Sacred Heart, San Francisco.

2835 Geary Boulevard aerial view, illustration by TEF

2835 Geary Boulevard pedestrian view, illustration by TEF
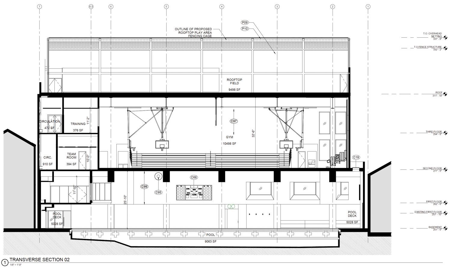
The proposed 63-foot-tall structure will yield around 65,370 square feet with parking for 17 cars and 20 bicycles. The basement floor will include a large lap pool with bleachers, and an open ceiling cutout from the first floor so students and visitors can see the pool from the ground-level lobby entrance and student lounges. The second floor will feature a gymnasium with a basketball court and bleachers. The third floor will include a performance studio and meditation studio. The rooftop field will be large enough to fit a soccer field.
TEF is the project architect, working with landscape architecture firm Groundworks Office. Illustrations show the complex will be wrapped in curtain-wall glass complemented with vertically formed metal panels. The rooftop field will be enclosed by a painted chain-link fence and netting with a curved top.

2835 Geary Boulevard seen along Wood Street, illustration by TEF

2835 Geary Boulevard vertical cross-section, illustration by TEF
The Schools of the Sacred Heart, San Francisco, is a partnership of two gender-specific K-12 Catholic schools, Convent of the Sacred Heart High School, founded in 1887, and Stuart Hall High School, founded in 2000.

2835 Geary Boulevard, image via Google Satellite
Public records show the property was last sold in July last year, but the price is not listed. According to the application, construction is expected to cost around $50 million, a figure that does not include all development costs.
 Subscribe to YIMBY’s daily e-mail
 
 Follow YIMBYgram for real-time photo updates
 Like YIMBY on Facebook
 Follow YIMBY’s Twitter for the latest in YIMBYnews






Be the first to comment on "Renderings Revealed For Schools of the Sacred Heart Athletics Facility in Laurel Heights, San Francisco"