Preliminary permits have been filed for a duplex infill at 2808 Ninth Street in West Berkeley, Alameda County. The proposal will replace a vacant residence with a missing middle housing plan. Regan Bice Architects is listed as the property owner and project applicant.

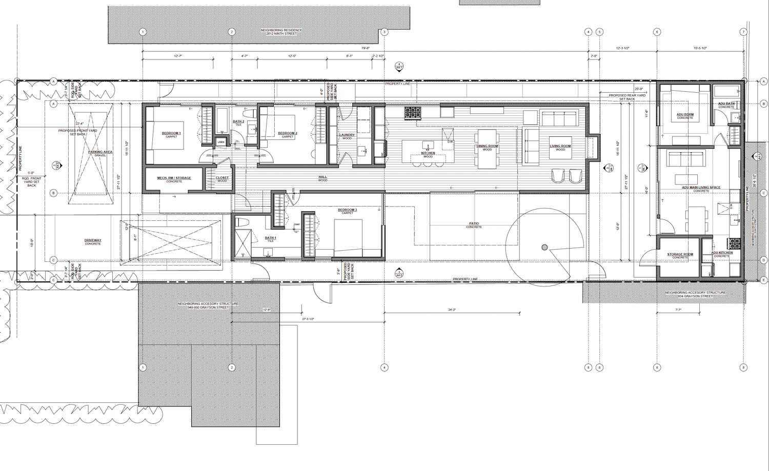
2808 Ninth Street floor plans, illustration by Regan Bice Architects
The development is expected to produce three residences across the site. There will be a two-story duplex and a detached two-car garage with a living unit. Illustrations show a contemporary-style farmhouse wrapped with corrugated metal siding and a wooden garage door.
The property is located along Ninth Street between Grayson Street and Heinz Avenue. The property is less than a block from the Berkeley Bowl West grocery store.

2808 Ninth Street, illustration by Regan Bice Architects
Public records show the property last sold in late June of this year for $750,000. The existing house, built in 1918, is currently vacant. The estimated cost and timeline for construction have not yet been shared.
Subscribe to YIMBY’s daily e-mail
![]()
Follow YIMBYgram for real-time photo updates
Like YIMBY on Facebook
Follow YIMBY’s Twitter for the latest in YIMBYnews






The urban barns are weird, how about a nice classical facade instead (Victorian, Edwardian, or brick, etc).