New zoning worksheets were filed for a proposed development at 6230 Claremont Avenue in Oakland. The site had preliminary permits filed earlier this year, outlining plans for a new seven-story senior living and residential care facility on the site. As of July of this year, the project was being developed by Ellis Partners and Spirit Living Group, but the overall property owner is listed as the American National Red Cross.
This partnership hopes to build nearly 200 units of new housing in the North Oakland neighborhood, specifically focused on accessible senior care. The resulting 82-foot-tall structure is expected to yield around 247,500 square feet, including 128,400 square feet of housing and 36,880 square feet for parking. Of the 197 units, there will be 48 studios, 99 one-bedrooms, and 50 two-bedrooms.

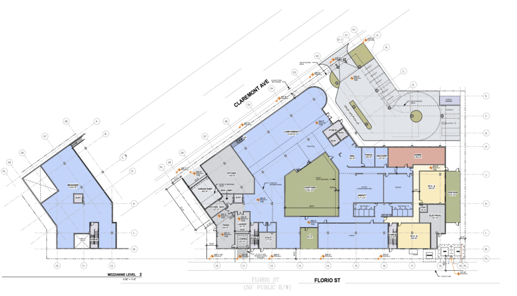
6230 Claremont Avenue Site Plan, image by BDE Architecture
The project will include a variety of amenities for both residents and visitors. The ground floor will include a gaming area, theater, fitness center, and a furnished lobby. The second floor will include a two-room community dining room connected to an open-air central courtyard. Lastly, the top floor will include a long skylounge and an outdoor terrace.
BDE Architecture is responsible for the design. Early Illustrations show a podium-style complex with articulation to break apart the overall massing visually. The facade is expected to be clad with cement plaster, wood-look panels, and thin brick veneer. The building’s relative height will give it a higher prominence than nearby structures while still remaining consistent with street front styles and density.

6230 Claremont Avenue north facade elevation, illustration by BDE Architecture
The property is located in the vibrant and walkable Rockridge neighborhood of North Oakland. Future residents will be directly across from a large grocery store and close to many more restaurants, shops, and neighborhood commercial options on foot. Public buses run along both Clairmont Avenue and College Avenue, and the Rockridge BART Station is only 10 minutes away on foot. Additional transportation needs will be met with 96 parking spaces.

6230 Claremont Avenue Site Location, image via ArcGIS Online

6230 Claremont Avenue, image via Google Street View
Subscribe to YIMBY’s daily e-mail
![]()
Follow YIMBYgram for real-time photo updates
Like YIMBY on Facebook
Follow YIMBY’s Twitter for the latest in YIMBYnews






looks like tenement housing.
This is sarcasm, right?
This project picks up the multi-family building type that exists throughout the neighborhood before single family homes became the standard, like 324 62nd St. across the College/Claremont intersection.
Good news!!
would be nice to see some corresponding pedestrian improvements on Claremont to assist these future seniors in getting to Safeway and the shops north of Claremont…I’m nervous crossing that weird intersection as an able-bodied adult!
conveniently left out that this is market rate (ware)housing, significantly impacting the immediate neighbors (SEVEN stories). Meanwhile, 51st and Broadway remains empty and it is directly across from facilities that have already been successfully integrated and are in easy access of both shopping and transportation.
If we lived in a command control economy, we would have developed 51st and Broadway for public good. But we don’t, and we now have a developer that is legally within their right to develop a derelict lot in a desirable neighborhood like RR for seniors. Hopefully these seniors will move in and sell to young families that desparately need larger housing spaces. You should be grateful somehting is happening here, in this weak economy. If you don’t want things to be built in a city, near walkable amentities and mass transit, move to the suburbs.