Preliminary permits have been filed for a backyard apartment infill at 647 Taylor Avenue in West Alameda, Alameda County. The application invokes Senate Bill 330 to streamline the approval process for the detached two-story complex. San Mateo County-based Rulicon Construction Inc is listed as responsible for the application.
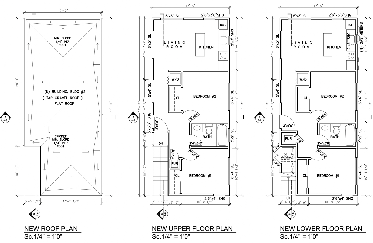
Detailed illustrations have not been shared by Rulicon Construction, though a massing diagram was published. The two-story structure will feature two two-bedroom apartments split between the lower and upper floor plans. The building will significantly increase the site’s residential capacity, since the existing three-unit building along Taylor Avenue will remain untouched if construction starts.
647 Taylor Avenue, diagrams via Rulicon Construction
647 Taylor Avenue, floor plans via Rulicon Construction
The property owner is listed as a local Alameda-based individual. The property is located along Taylor Avenue between 6th Street and the retail-lined Webster Street thoroughfare. Future residents will be a few blocks away from Washington Park.
The estimated cost and timeline for construction have not yet been shared.
Subscribe to YIMBY’s daily e-mail
![]()
Follow YIMBYgram for real-time photo updates
Like YIMBY on Facebook
Follow YIMBY’s Twitter for the latest in YIMBYnews






Be the first to comment on "Preliminary Permits For Backyard Apartments at 647 Taylor Avenue, West Alameda"