Formal plans have been filed for the backyard apartments at 241 Dolores Street in the Mission Dolores neighborhood of San Francisco. The proposal is looking to more than double the site’s residential capacity. Knock Architecture & Design is the architect and applicant.

241 Dolores Street street view proposed elevation, illustration by Knock Architecture and Design

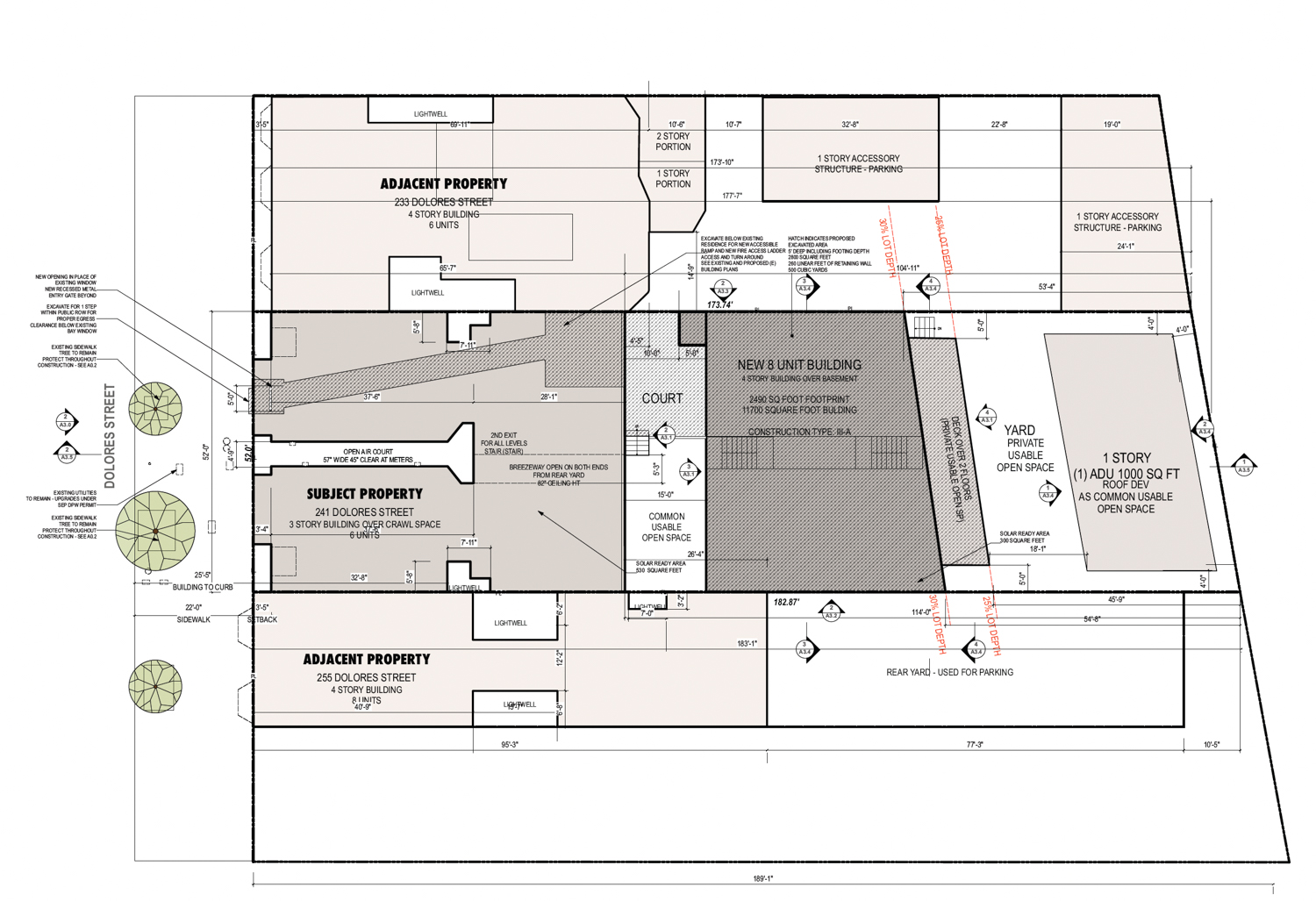
241 Dolores Street site plan, illustration by Knock Architecture and Design
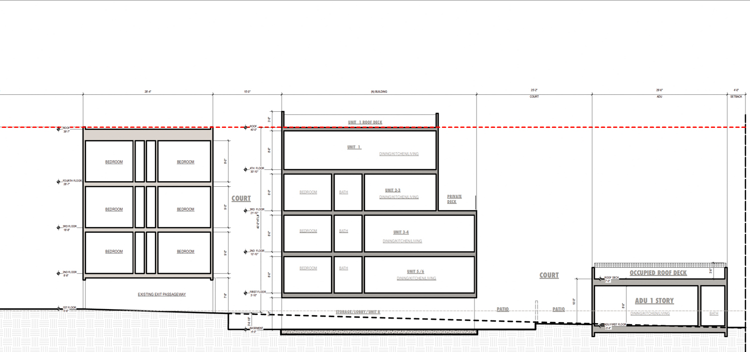
The application is considering two new structures behind the existing apartments. The first is a four-story infill, rising 40 feet tall with eight units spanning 11,730 square feet. The second structure, considered optional for development, is a single-story accessory dwelling unit with a two-bedroom apartment and a communal rooftop deck.
The full build-out would increase the residential capacity of the single parcel from 6 to 15 units, comprising 14 two-bedroom units and a three-bedroom unit. Parking is included for nine bicycles. The existing building was constructed in 1909 in the Edwardian classical revival style, though the original architect is not listed. The plans would involve alterations to the ground floor, adding a new lobby and throughway from the street to the proposed addition.

241 Dolores Street vertical cross-section, illustration by Knock Architecture and Design
The application invokes Senate Bill 330 and SB 423 to streamline the approval process. Public records show the property last sold in September this year for $2.7 million, and the property owner is listed as a local individual.
The 0.2-acre property is located along Dolores Street between 15th and 16th Street, two blocks from Mission Dolores Park and three blocks from the 16th Street BART Station. The estimated cost and timeline for construction have not yet been established.
Subscribe to YIMBY’s daily e-mail
![]()
Follow YIMBYgram for real-time photo updates
Like YIMBY on Facebook
Follow YIMBY’s Twitter for the latest in YIMBYnews






yes, we meed more of these innovative housing structures.
Good. SF has way too many underutilized backyards. If SF could somehow normalize / standardize / promote the creation of a two story cottage in the back of many yards, it would be huge, esp in areas like the Sunset.