Plans have been approved for a six-story apartment complex at 3458 Mount Diablo Boulevard in Lafayette, Contra Costa County. The project is now entitled to add 31 residential units and retail to a corner lot on the eastern end of the suburban city’s commercial core. Moraga-based Gera Developments is responsible for the development, filing through Outdo Lafayette LLC.

3458 Mount Diablo Boulevard side view, rendering by Ascend Architecture

3458 Mount Diablo Boulevard pedestrian activity, rendering by Ascend Architecture
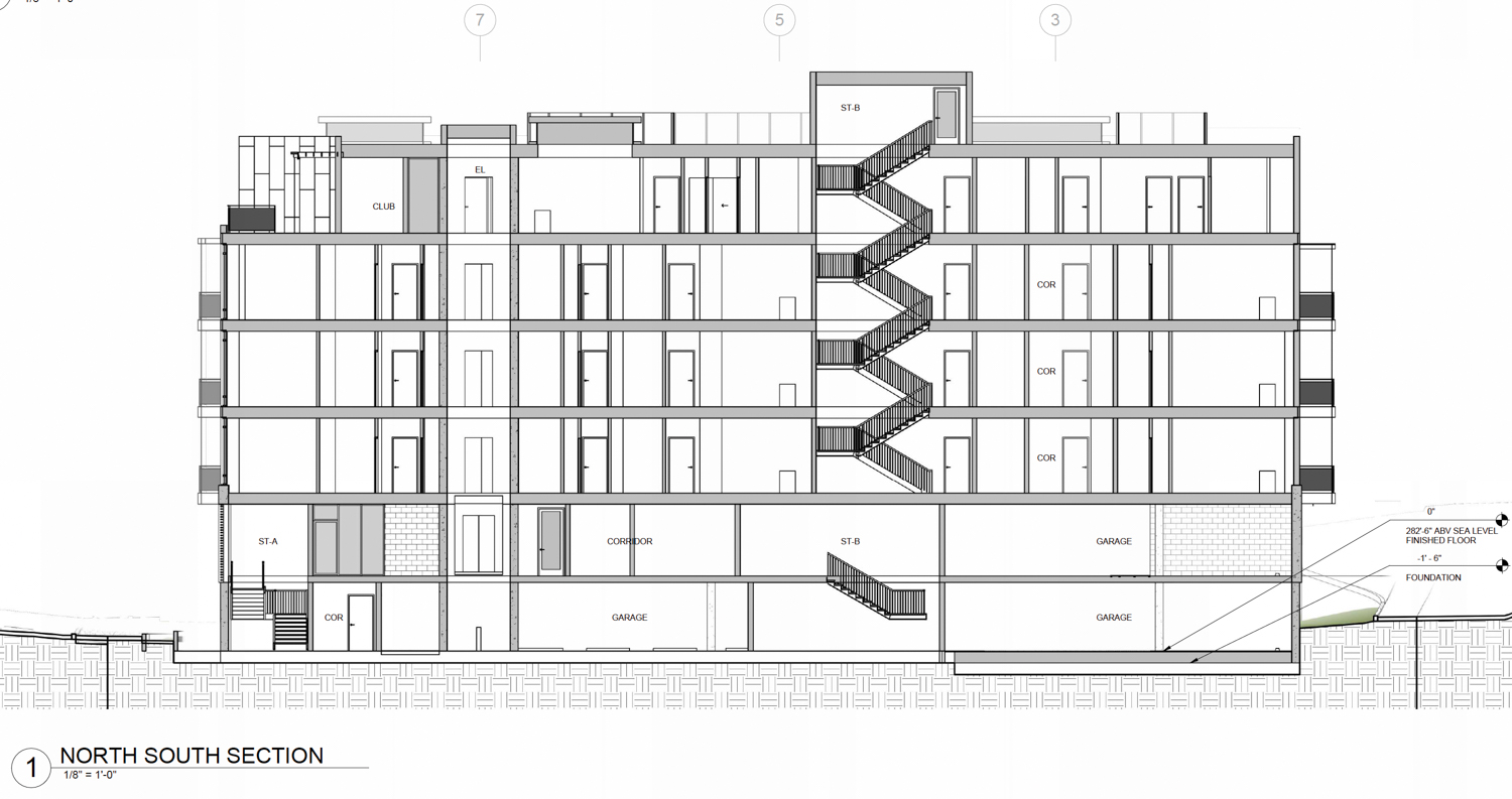
The 62-foot-tall structure is expected to yield around 72,050 square feet, including 39,900 square feet of housing and 19,400 square feet for the two-story podium garage. The project will include 31 units, including two very-low-income households and one moderate-income household. Parking will be included for 55 cars and 23 bicycles.
Ascend Architecture is responsible for the design. Illustrations from the Sausalito-based firm show a podium-style contemporary design with a millennial grey color palette, glass-railing balconies, and facade articulation.

3458 Mount Diablo Boulevard vertical cross-section, illustration by Ascend Architecture

3458 Mount Diablo Boulevard, image via Google Street View
The exterior will be clad with board-formed concrete and composite panels. The structure will be setback on the third floor, creating eight private podium-top balconies facing east and west. Environmental Foresight Inc. is responsible for the landscape architecture.
The 0.64-acre property is located at the corner of Mount Diablo Boulevard and Second Street. The property is a block away from a grocery-anchored shopping center. Future residents will be about 15 minutes away from the Lafayette BART Station on foot, or five minutes by bicycle. Demolition will be required for an existing single-story commercial structure.
Subscribe to YIMBY’s daily e-mail
![]()
Follow YIMBYgram for real-time photo updates
Like YIMBY on Facebook
Follow YIMBY’s Twitter for the latest in YIMBYnews






Be the first to comment on "Plans Approved For 3458 Mount Diablo Boulevard, Lafayette"