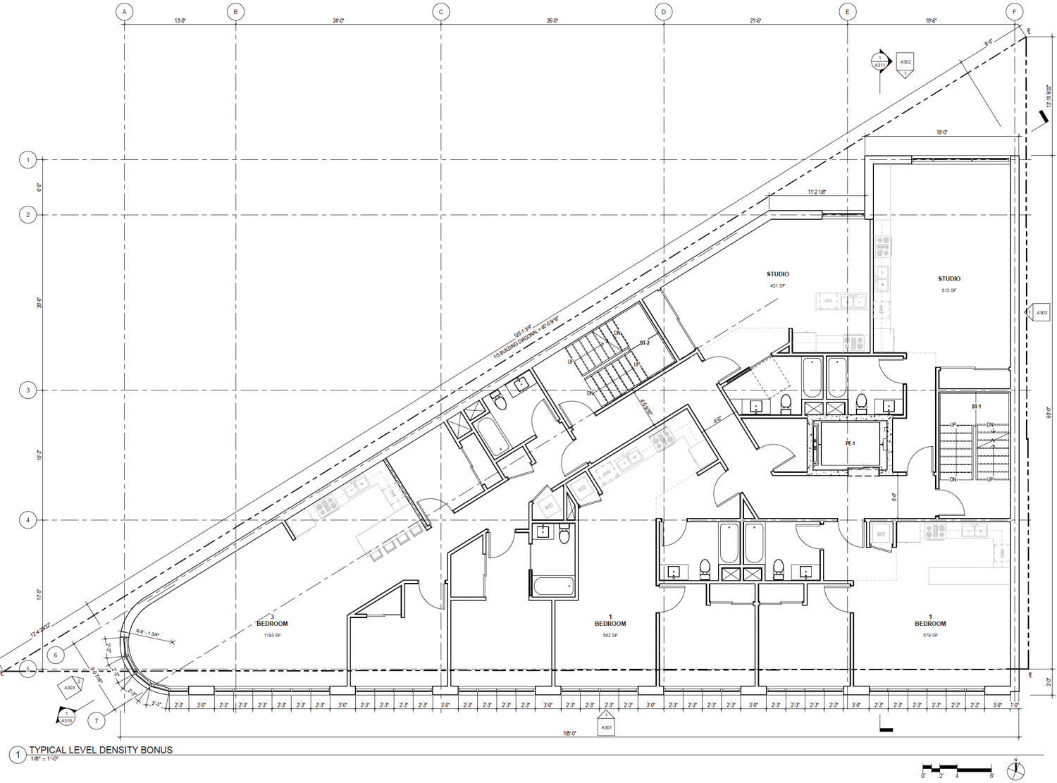
Plans have surfaced for a potential eight-story residential complex at 3230 24th Street in San Francisco’s Mission District. The project is looking to add 35 apartments to a vacant triangular parcel just one block away from the 24th Street BART Station.
The 84-foot-tall structure is expected to yield around 33,820 square feet, including 29,390 square feet of housing and 1,870 square feet of retail. Parking will be provided for 32 bicycles. Unit types vary with 14 studios, 14 one-bedrooms, and seven two-bedrooms.

3230 24th Street vertical cross-section, illustration by Wong Logan Architects

3230 24th Street floor plan, illustration by Wong Logan Architects
Berkeley-based Wong Logan Architects is responsible for the design. Planset drawings show the building wrapped in either glass-fiber-reinforced gypsum or terracotta panels. The flatiron-style tower will conform to the triangular parcel, with a rounded corner facing Capp Street.
The 0.10-acre property is located along 24th Street between South Van Ness Avenue and Capp Street. The site is one block from the 24th Street BART Station along the retail-rich Mission Street.

3230 24th Street, image via Google Street View
Trigona LLC, linked with Wong Logan Architects, is listed as the property owner. Planning permits have not yet been filed for the project. The estimated cost and timeline for construction have yet to be established.
Subscribe to YIMBY’s daily e-mail
![]()
Follow YIMBYgram for real-time photo updates
Like YIMBY on Facebook
Follow YIMBY’s Twitter for the latest in YIMBYnews






Love it!!
Won’t someone please think of the historic empty lot and how this Manhattan sized skyscraper will destroy the character of the neighborhood! /s
Well, that lot is a remnant of the old Southern Pacific rail line…..
As far as destroying the character of the neighborhood, you’d better Calle Veinte Quatro. I don’t think they’re anxious to have a bunch of white AI tech bros in La Mision.
What about the not white tech bros and bro-ettes?
Hook, line, and sinker. Predictably clownish.
Is that lot a triangle because of an old railway right of way…like Treat street?
Correct.
Also, just stop pretending that you don’t want to forcibly contain all the brown people to certain neighborhoods. It’s the direct outcome of your repeatedly stated policy preferences. Being a racist that hides behind faux progressive language still makes you a racist.
Hey, just look at the comments you YIMBYs make here. You’re all a bunch of closet, and not so closeted, racists who want to colonize every square inch of this city with your AI tech bro mansions.
Real San Franciscans have had it.
Who are the “real” San Franciscans in this hypothetical insight? Have they also had it with getting kicked in the balls by people who’d rather wrap the city in caution tape and stop any meaningful progress?
Calle 24 being anxious about a bunch of whites in the mission? The same anxiety the whites have in the marina over black and brown folk? Lol check yourself…
When did eight stories become a skyscraper Anonymous?
I think you might be missing the dash of sarcasm.
It’s sarcasm ;]
Super stylish! Goes to show that a design that’s simply well-proportioned is much more interesting and elegant than a design with an overly articulated facade as dictated by certain zoning guidelines.
Now we’re talking! Just need to add a bit of colorful tile mosaic on the facade to address the inevitable neighborhood criticism and appease the Calle 24 group.
In all seriousness, this is exactly the scale and mix of housing we need in the Mission.
Calle 24 will attempt to make this a Latino only building, if they can moan loud enough at the planning board meetings. This is of course to “preserve the character of the neighborhood.”
(Which before they came, was not entirely Latino)
Before they came? The Spanish conquistadores or the white colonists from New York?
I think probably a bit more recently… like maybe pre-60s German, , Irish, Italian types.
Just curious what’s limiting the height to 8 stories… Zoning? Some regulations related to the small lot?
Above 8 stories is a high rise as defined in the building code (actually 75′ to highest occupied floor), which comes with added costs like pressurized exit stairs and a fireman’s elevator, so the economics argue for the lower height or for at least 12 stories to amortize the extra cost.
Thanks!
Wow – I did not know that and it makes it so much easier to understand what’s going on. I’m just an urbanist gadfly here – not an architect nor a city planner. Thanks for all the knowledge here!
I am seeing a distinct uptick in both the frequency and vertical height of new projects.
Has something fundamentally changed with the new laws? Or will NIMBYs still manage to obstruct human progress?
It’s mostly a bunch of new and recent state laws, coupled with some local ordinance and governance changes. Projects like this are no longer subject to frivolous, bad faith CEQA lawsuits. There’s no discretionary review for code compliant projects. They get more streamlined permitting. The density bonus might be the biggest reason you see more vertical increases though. There’s really nothing opponents can do legally or bureaucratically to stop proposals like these. Its really just a question of financing and economics.
There also seems to be a real change in getting debt for developments – this has partially changed nationally (lower interest rates) and partially is a change locally (New York banks more willing to lend now than during the Breed administration)
Thanks. But as I am seeing this not just in SF but in the Peninsula and San Jose, it seems the state level law is the bigger factor.
Changing demographics also bring different views towards density vs. a NIMBY view of a landed gentry.
None of it is actually getting built yet, remember. Just permitted. Until these things actually start digging, it isn’t a done deal. Tons of stuff approved over the last several years is still sitting around, waiting for funding or whatnot.
Nice project! Cool to get 35 units on a tenth of an acre with an odd shape.
And to ‘Anonymous’ above, perhaps you haven’t been to Manhattan since, I dunno, the 1920’s, but an 8 story building is not a “skyscraper.” It’s very human-scale West Village proportions. If the Marina Safeway proposal had been 8 stories I don’t think we’d have had as much gasping as we have…
I’m being facetious and making fun of the clowns that screech bloody murder anytime anything over 3 stories is proposed. I would be totally happy to see this be even taller.
Phew! Oh good, cool. Yeah, 6-8 stories seems like a sweet spot in this town where people don’t get *too* worked up. I mean, some people will always get worked up, but it seems to fit in pretty nicely.
And these people are generally too dense to understand that if you allowed buildings of this scale everywhere, you wouldn’t need as many *actually* tall buildings to make up for it.
True. Look at the overlay of Paris to SF, smaller than our city in area, but with 2 1/2 times our population density (50,340/square miles versus 18,600 per), and no high rises. It’s all buildings about this height and considered one of the most beautiful places in the world.
Yeah – my response to criticism of buildings like this as being too tall/too massive is to remind them that Paris (walkable, livable, human scale city) is almost entirely 6-7 stories thanks to rules put in place in the 19th century under Haussmann. Similar in Barcelona, rebuilt and expanded in the 19th century using rules adopted by Cerda.
So if SF went from 1-3 stories to 5-8 stories we might look like Paris? Or Barcelona? Horror! Sign me up, bro…
Irony and satire doesn’t always work in print, and it sometimes is taken seriously.
Nice, keep em coming!!
A lot of finger pointing to Calle 24. But the Marina has proven they don’t want Black and Brown people, so by this logic, housing should just be built in black and brown communities?
@scotty mcweiner
San Francisco might be the most racist city in the US and the fact many use faux progressive attitudes to maintain their views and neighborhood character is disgusting. West Oakland and the Mission, my heart goes out to you both.
What is this gibberish?
Why does your heart go out to West Oakland? We welcome development. We have too many empty lots and abandoned buildings.
Hell YES, 4get the nay sayers, empty lots in SF should all be converted in affordable housing, I am not saying sky high riser but 4 to 8 stories high depending on urbanization and demographics, keep making my san francisco beautiful and better , Not worse and dirty. 💯👍