Planning progress has been spotted for the four-story senior care facility proposal at 5500-5504 Mission Street in San Francisco’s Outer Mission. The formal application has been filed for the development, including a lot merger and construction of a 49-bed complex. Tommy Lee of Merced Residential Care is listed as the property owner.

5500 Mission Street facade elevation, illustration by Schaub Li Architects.jpg

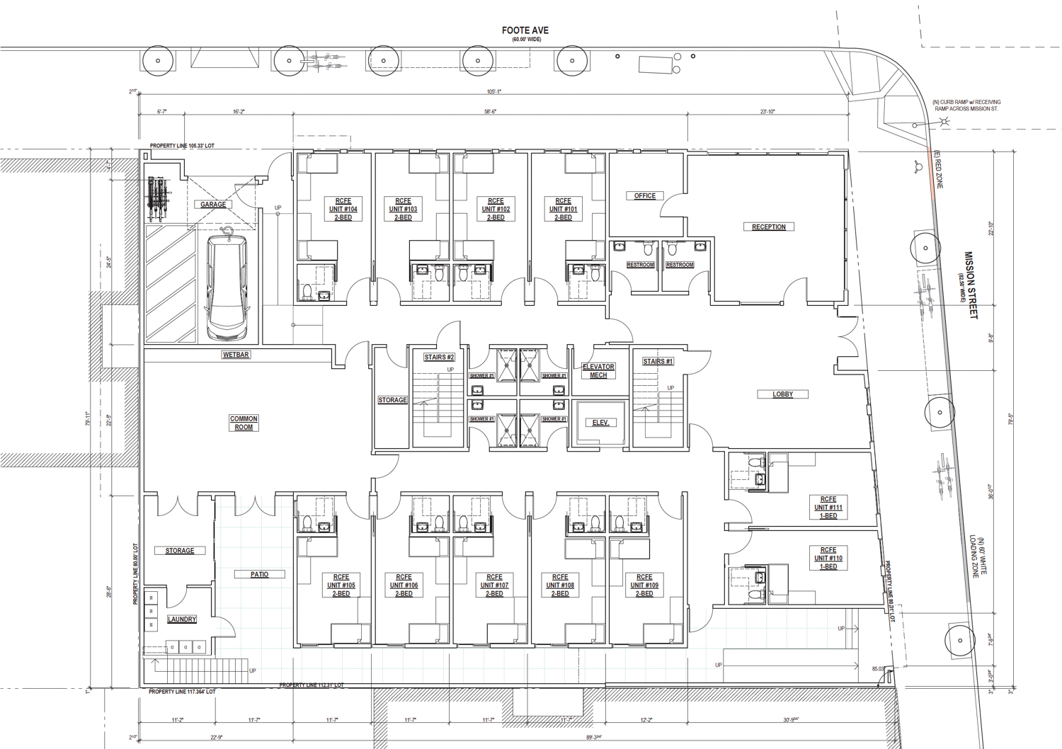
5500 Mission Street floor plan, illustration by Schaub Li Architects
The roughly 40-foot-tall structure is expected to yield around 26,500 square feet, including 23,900 square feet of RCFE area, 2,170 square feet of common space, and 430 square feet for a single-car garage. The complex will include 49 beds across 30 rooms, including for ambulatory and non-ambulatory patients. Additional space will be included for parking ten bicycles.
Schaub Li Architects is responsible for the design. Illustrations show an unremarkable apartment-style building visually distinguished with a top-floor terrace setback capped with a featureless slab cornice. The exterior will be clad with stucco and porcelain tiles.

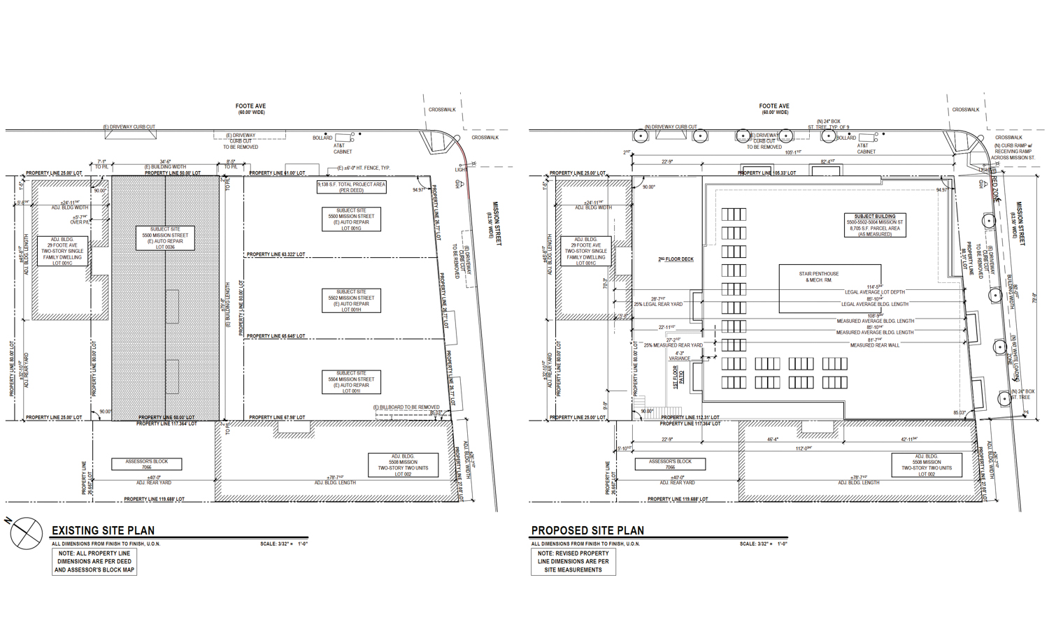
5500 Mission Street existing condition (left) and proposed site plan (right), illustration by Schaub Li Architects

5500 Mission Street, image via Google Street View
Previously, new building and demolition permits were filed for the site in 2016. The unfulfilled application called for a four-story senior care facility with 24 units. Demolition for the single-story structure along Foote Avenue has yet to occur, and the associated surface parking is currently fenced off.
Construction is estimated to cost around $3.5 million, a figure not inclusive of all development costs. The timeline for when work will start has not yet been shared.
Subscribe to YIMBY’s daily e-mail
![]()
Follow YIMBYgram for real-time photo updates
Like YIMBY on Facebook
Follow YIMBY’s Twitter for the latest in YIMBYnews






That ground floor plan really drives home how one parking space takes up the same area as a room for two people. Granted, these are very modest living quarters, but you can easily imagine how a parking requirement would make a building like this completely impossible.
This particular building is designed for seniors, but the basic layout is that of an SRO. If we’re serious about making housing affordable, we need a lot more of them, such that anyone with a relatively modest income should be able to find a clean, modern and well-managed room like this for a reasonable cost.
Fits right in with the discriminating neighborhood