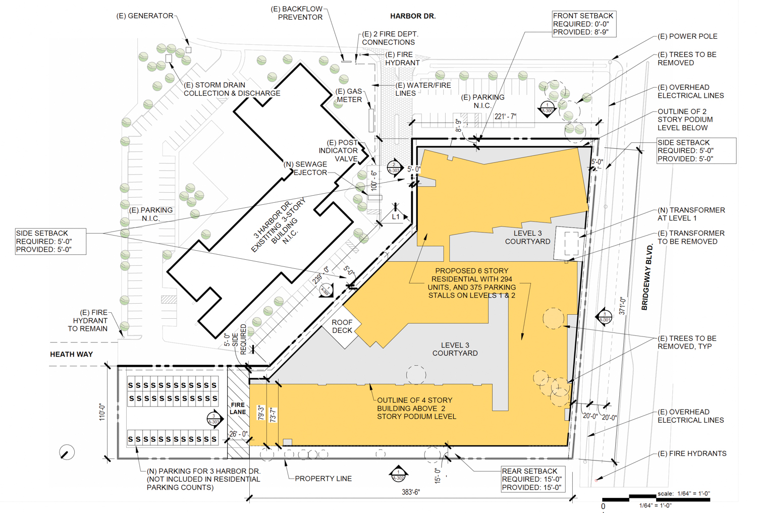
Preliminary permits have been filed for an expansive six-story apartment complex at One Harbor Drive in Sausalito, Marin County. The initial plans aim to replace an existing office building with nearly three hundred units. San Francisco-based Bayspring Development Partners is responsible for the application.
The proposal calls for demolishing the Harbor One Office Building, closer to Bridgeway, leaving the Harbor Three Office Building in place on a revised commercial lot. The developer is utilizing Senate Bill 330 to streamline the approval process and the State Density Bonus Law to increase residential capacity. The bonus provides zoning waivers for lot-line setback, height, landscaped area, and open space.

One Harbor Drive facade elevation, illustration by AC Martin

One Harbor Drive site plan, illustration by AC Martin
The 64-foot-tall structure is expected to yield approximately 467,400 square feet, including 322,090 square feet of housing and around 100,000 square feet of the podium garage. Parking will be included for 411 cars and 395 bicycles. Residential amenities will include an expansive third-floor courtyard and a smaller top-floor deck.
The project will include 294 units, including 46 below-market-rate dwellings. Affordability will range for 23 very low-income households, 7 low-income households, and 16 moderate-income households. The overall unit sizes will vary with 31 studios, 152 one-bedrooms, 103 two-bedrooms, and eight three-bedrooms.

One and Three Harbor Drive, image via Google Satellite outlined approximately by YIMBY
AC Martin is responsible for the design. Illustrations show the podium-style complex wrapped in fiber cement siding and plaster. Some exterior articulation and varied rooftop heights will visually break up the overall massing. The three-acre property is located at the corner of Harbor Drive and Bridgeway, across from a grocery store and just a block away from the Clipper Yacht Harbor.
The estimated cost and timeline for construction have not yet been established. Speaking with Steven Rosenfeld for the Marin Independent Journal, Bryce Holman from Bayspring Development Partners shared that, “what we just filed basically locks us into the current regulations that are in place… This is a bookmark or a placeholder for what we’re going to do.
Subscribe to YIMBY’s daily e-mail
![]()
Follow YIMBYgram for real-time photo updates
Like YIMBY on Facebook
Follow YIMBY’s Twitter for the latest in YIMBYnews






Wahoo for Sausalito!
While this would be great for Sausalito, I highly doubt it could get built there.
It’s not up for discretionary approval. It will get built there.
Glad I moved out of Sausalito many years ago. Not exactly the type of place for this monstrosity.
We’re pleased you’re gone. #SoLongElitist
While admittedly an uninspired design (come on AC Martin!), putting a large residential building like this in this location in Sausalito makes a lot more sense than trying to shoehorn one into the downtown historic district.
This seems reasonable except for its great amount of parking, well more than one parking space per unit despite Bridgeway is seeing nearly a doubling of bus frequency as of 4/12/26. With climate change progressing and worsening flooding impacting this neighborhood, now is the time to back away from such over reliance on single occupancy vehicles and embrace public transit.
They have to break these blocks up
These buildings are too big. Color changes don’t help
There is a better way then this
Brilliant. Nine feet above sea level and built on bay mud, AKA 2 feet above high tide.