Preliminary permits have been filed for a backyard apartment complex at 241 Dolores Street in the Mission Dolores neighborhood of San Francisco. The proposal will replace a private courtyard with a four-story infill and ADU. Knock Architecture & Design is the architect and applicant.

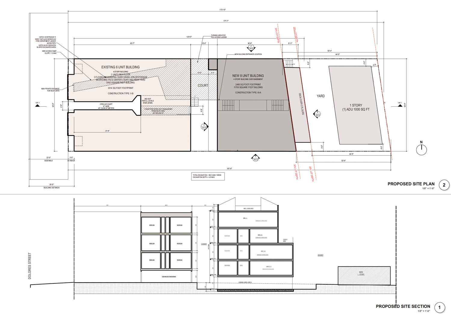
241 Dolores Street site plan, illustration by Knock Architecture & Design
The site plan will replace the rear yard with a 12,700-square-foot four-story complex and a single-story accessory dwelling unit. Once built, 241 Dolores Street will contain 15 units, including the six existing apartments, eight residences, and one accessory dwelling unit. Parking will be added for eight bicycles.
Preliminary illustrations provide a limited glimpse of the future addition, including an angled roof and rear-facing setback. The firm’s portfolio demonstrates an affinity with streamlined vertical board panels and floor-to-ceiling windows.

241 Dolores Street rear-yard expansion elevation, illustration by Knock Architecture & Design
The existing four-story Edwardian Classical Revival-style structure was built in 1909. The 0.2-acre property is located along Dolores Street between 15th and 16th Street, two blocks from Mission Dolores Park and three blocks from the 16th Street BART Station.
The application invokes Senate Bill 423 to streamline the approval process. Public records show the property last sold in September this year for $2.7 million. The previous owner was a San Rafael-based family trust.
Subscribe to YIMBY’s daily e-mail
![]()
Follow YIMBYgram for real-time photo updates
Like YIMBY on Facebook
Follow YIMBY’s Twitter for the latest in YIMBYnews






Love seeing more density in a stellar location
great use of space.
That is great. The front will look the same, but there will be more housing.
I am sure NIMBYs will find some way to complain.
‘Wondering how long it will be before the developer moves to tear down that unsightly 1909 Edwardian.
Do the pearls you clutch shimmer scarlet, or are they as black as your dread?
Seriously, get a hobby.
Why would someone possibly imagine this is a prelude to tearing down the existing six unit building? It would make no sense at all to do such a staged building-demo-building. Don’t let your cynicism get the best of your brain.
The only thing I’m immediately thinking here is that the tenants are due rent reductions since loss of the courtyard is a material loss in their rental accomodation and they will have to contend with the added disruption of construction undertaken by their landlord
We shall see. I live around the corner and will watch with interest.