Formal permits have been filed for a small residential project at 1237 19th Street in Potrero Hill, San Francisco. The infill will increase the unit count for the narrow lot from one to two units, utilizing Senate Bill 423 to streamline the process. Tim Brown of Brown & Co. Group is listed as the project applicant.

1237 19th Street rear view, rendering by Pristereo

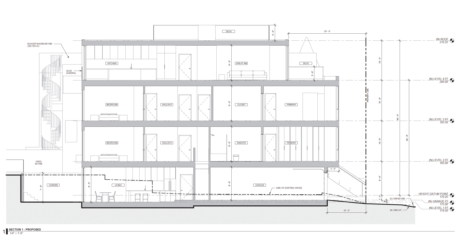
1237 19th Street vertical cross-section, illustration by Pristereo
The four-story duplex is expected to yield nearly 5,000 square feet, a marked increase from the existing 1,527 square feet. Parking will be included for two cars and two bicycles. Both apartments will include three bedrooms and a private open space. The first unit will occupy the first and second floors, with access to the landscaped backyard. The second unit will occupy the third and fourth floors, featuring two open-air decks.
Marin County-based architecture firm Pristereo is responsible for the design. Renderings show a contemporary millennial-style facade contrasting the white stucco facade with black metal-framed windows. The structure will include a boxy bay window over the garage along 19th Street and a top-floor setback, reducing the building’s visual impact on the street.

1237 19th Street Current Site, image via Google Street View
The project is located near the 22nd Street Caltrain station and the Muni T line. However, the neighborhood’s extreme hilliness reduces its walkability for some residents. Construction is estimated to start next Fall, according to the SB 423 application, with the cost to be determined.
Subscribe to YIMBY’s daily e-mail
![]()
Follow YIMBYgram for real-time photo updates
Like YIMBY on Facebook
Follow YIMBY’s Twitter for the latest in YIMBYnews






Why would anyone choose a design like this? Like seriously, what was the home owner thinking when they commissioned the architect and were handed back this design? Is it that tech bros see this buildings with this sort of blockiness and deliberate asymmetry as being associated with wealth and high status or something? I want San Francisco’s housing capacity to increase, but I really can’t blame anyone for opposing it when the new developments replacing the traditional housing stock look like this.
Welp, it’s opinions like yours that have directly contributed to the housing crisis and also now have finally received the backlash they deserve. There’s literally nothing wrong with replacing a housing unit that has outlived its practical usability. It is both silly and impractical to replicate the designs of the past.
>”Welp, it’s opinions like yours that have directly contributed to the housing crisis”
No, to say my opinion on architectural trends has contributed to NIMBYism is to say the reason people dislike architecture like this is because they’re just gaslit into disliking it. Local residents will dislike this redesign equally regardless of whether they want more density or not because it just looks ugly to the majority of people. What does actually contribute to NIMBYism is consistently ugly designs among new housing projects, especially when it replaces much better looking buildings. As a YIMBY you should be advocating for better architectural practices and for the abolition of San Francisco’s architectural design code that encourages buildings to look like this because that’s one of the easiest ways to reduce the number of NIMBYs that will try to block it.
>”There’s literally nothing wrong with replacing a housing unit that has outlived its practical usability.”
You’re so entirely missing the point. Nothing about replacing a housing unit requires it to look like this. The striking lack of symmetry that causes most people to find this building instinctually offputting is an intentional choice rooted in modernist and post-modernist philosophical traditions, not anything functional, utilitarian, or even creative. Even with San Francisco’s design code it would have been cheaper just to design this renovation with basic symmetry.
>”It is both silly and impractical to replicate the designs of the past.”
It’s not, it’s actually a lot cheaper to slap ornamentation onto the facade of a basic box-shaped building like they used to than it is to build the sort of structural modulation or facade articulation found in most modern American mid-rise buildings, and even cheaper to just use an undecorated traditional facade material like wood or brick. Most of San Francisco’s expensive ornate townhomes originated as middle class or even working class housing, with ornamentation mass produced in factories then ordered through catalogs. Sometimes the houses themselves were even ordered as kits through Sears or other catalogue companies. European cities still build a lot of development in traditional and revivalist styles to this day, they just don’t do it in the US because the modernist and post-modernist schools has been so overwhelmingly dominant among American architects since the 1960s that most cities have architectural codes that effectively enforce those design features.
>”also now have finally received the backlash they deserve.”
You only think that’s the case because your circle is limited. At the same time the pro-density movement has grown, so to has the anti-modernist movement, and these two are closely intertwined. A lot of major YIMBY advocates talk about the sort of architectural issues I’m talking about, including Max Dubler, one of the professional city planners who works for CAyimby.org
The proposed building’s excessive height and massing would significantly diminish natural light for adjacent properties, creating an overwhelming and intrusive presence that is out of scale even when compared with the substantial neighboring Victorian homes.
This is pretty tragic to our street of 100 year old Victorians. We have the adjacent property which is an 1895 Queen Anne (house in Pacific Heights movie) and all of our east side windows, master bedroom, office & bathroom will be blocked with a tall wall. Wish the developer would take into consideration the homes on the street.
But it looks like a similar height to your bldg. isn’t it fair?