Preliminary permits have been filed with updated plans for 1027-1049 Clayton Street in the Haight-Ashbury neighborhood of San Francisco. The project would develop five parcels with nine units. Schaub Li Architects is responsible for the application and design.
The development will include nine units across five five-story buildings, conforming to the steep parcel. Parking will be included for nine cars and nine bicycles. Each dwelling will offer two bedrooms.

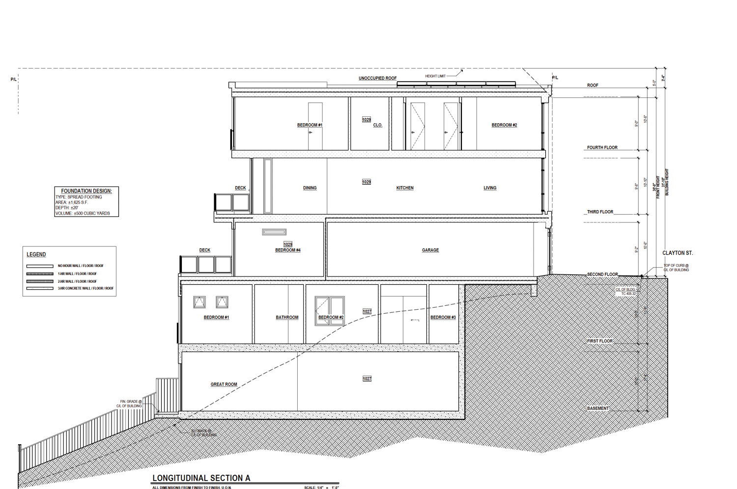
1027-1029 Clayton Street vertical cross-section, illustration by Schaub Li Architects

1027-1029 Clayton Street, rendering by Schaub Li Architects

1043-1045 Clayton Street Historic Survey field notes, document via SF Planning
Demolition of the existing house will be required. As an aside, while reviewing historical records, I found an unusual note in the 1976 historic survey of the building, published by the San Francisco Planning Department. There are two handwritten notes in the Field Notes section. The first note describes the building as “present day contractor-builder vernacular ‘High’ art.” The second comment, in different handwriting, says, “Ms. McGinley gonna hate you.” Now I have no clue what this is about, nor who Ms. McGinley might be. If anyone knows, please share with me! I’m rather curious.

1027-1033 Clayton Street, image via Google Street View
The property owner is a Sunnyvale-based company named OBT LLC. The pre-application invokes Senate Bill 330 to streamline the approval process and planning for the future formal application. The estimated cost and timeline for construction have yet to be shared.
Subscribe to YIMBY’s daily e-mail
Follow YIMBYgram for real-time photo updates
Like YIMBY on Facebook
Follow YIMBY’s Twitter for the latest in YIMBYnews






10 minutes of design. The Bay Area has a rich tradition of architecture and this is what we get……it’s “I don’t care”.
Totally. That is what the YIMBYs want apparently. Uglify and destroy the quality of life that we have here. Just to make their developer bosses rich. All done under the cloak of “affordability.” There will never be market-rate affordable housing built in the Bay Area, and no, the prices aren’t going to come down because there is an inexhaustible supply of rich people who want to live here. Not to mention overseas investors.
Silence. It is a huge improvement over what was there before.
Remember, nothing is uglier than a NIMBY’s soul.
Mmmm. “Huge improvement” I think not, but [unfortunately] necessary, yes.
Yes it’s a huge improvement. 9 homes replacing 1 run down home. Plus the property tax of 9 homes. Plus future customers of those 9 homes will increase business activity.
Looks dope to me.
Is the rich architecture in the room with us? Its a run down home. Get over yourself.
100%
Hi Andrew,
What a funny note on the survey form! I looked into some more records available on PIM (thank god for that resource!) and here’s what I found attached to the CEQA checklist, at the “related documents” link under “Historic Resource Evaluation Responses” on the Historic Preservation tab:
“Ms McGinley” probably refers to one of the previous occupants, Louise Martha McGinley. The property is a duplex, one unit was occupied by Louise and James McGinley, and the other by John and Helen Gofman (Helen and Louise were sisters, so James and John were brothers in law). The report states that the four lived at this property from its construction in 1975 to 2017, when the last of the four, James McGinley, died.
As for why Ms (Mrs) McGinley would have ‘hated’ the surveyor? That’s anyone’s guess. There are a dozen possible answers – maybe she wouldn’t have wanted her house flagged as possibly historic? Maybe she would be insulted by the label “home made” and “contractor-builder vernacular ‘high-art,'” as the building was only a year old when the survey took place? Who knows!
There’s an interesting story behind the construction of the house, but even more interesting is the biography of its previous occupants. For fun, here’s what the report says:
“Previous occupants of the site have some interesting biographies. Peter M. Bond, who
lived at 1039 Clayton, was an activist/artist who went by the name Pemabo and turned his
front yard into a Peace Garden filled with protest signs and slogans promoting harmony.
John Gofman was a physicist who contributed to the Manhattan project and later
researched the effects of radiation at Lawrence Livermore Labs. Helen Fahl Gofman taught
at UCSF and was a national leader in behavioral pediatrics. James McGinley was a physician
specializing in dermatology at Kaiser and taught at UCSF. Louise Martha McGinley studied
at UC Berkeley and the San Francisco Art Institute and was a sculptor. Louise McGinley and
Helen Gofman were sisters.”
Hope this satisfies a bit of your curiosity!
That’s some great research.
Replacing an old single family home with 9 units. If this happens at scale, then the needle really moves without NIMBY Luddite interference.
How much does TMG Partners pay you per post? Asking for a friend.
Where can I sign up to get paid on this site?
How sad that you think everyone is an amoral, low-level thinker like you.
NIMBYs are the lowest of the low. Both in IQ and character.
I’m sorry dude, but your posts are so sad. I really can’t stand indoctrinated YIMBY bots, but you seem either really young, or kinda damaged.
Here’s wishing you a speedy recovery.
It would be so nice if these posts would mention what the nearest cross street to the project is so the reader might have a better idea of the location. I live in that side of town and know Clayton Street, but I don’t have a clue as to where on Clayton this project is.
I guess the address is going to have to do.
Its between 17th and Parnassus…just below where Ashbury meets Clayton.
Thank you!
I remember the Peace Garden. The existing homes are of rustic design and fit in with the Haight Ashbury neighborhood character. The proposed new buildings are boring and faceless.