Permits have been filed for a new low-density residential development at 1976 Edgewater Road in the Woodlake neighborhood of Sacramento. The project will include around 88 units across a mix of single-family units, duplexes, and accessory dwelling units. Marin County-based Redwood Residential is the project developer.

1976 Edgewater Road architecture views, illustration by Studio 81

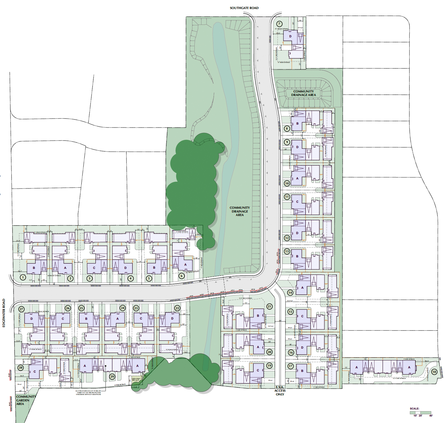
1976 Edgewater Road site plan, illustration by Studio 81
The plan will split the roughly seven-acre property into 29 residential lots and internal private roads. Across the site, there will be 88 residences, including 27 single-family homes, four duplex units, 31 attached accessory dwelling units, and 26 detached accessory dwelling units.
Studio 81 International is the project architect, working with Yamasaki Landscape Architecture. Illustrations show a consistent facade treatment with a mix of stucco and boarding panels. The housing will conform around a drainage area.

1976 Edgewater Road outlined approximately by YIMBY, image via Google Satellite
The roughly seven-acre property is located along Edgewater Road between Expo Parkway and Southgate Road. The site is two blocks away from the Del Paso Boulevard commercial thoroughfare.
The estimated cost and timeline for construction have yet to be shared.
Subscribe to YIMBY’s daily e-mail
![]()
Follow YIMBYgram for real-time photo updates
Like YIMBY on Facebook
Follow YIMBY’s Twitter for the latest in YIMBYnews






I always found this vacant tract so…odd. Too bad these new bland tract homes won’t have the charm of the existing Woodlake neighborhood
I would have thought that low-density wasn’t allowed anymore in CA.
I don’t know where you hear this information but don’t believe everything you hear on the internet
Yes, it might be a low density project but it is very good to see that land finally being developed after it has languished for decades without any new housing. That area is in desperate need of new economic activity.
Dang, I would off myself if I had to design crud like this as my job. And this is better than a lot of the developer crap that defaces so much of our lovely state of California.
at least they are not egregious snout houses